HENDERSON COUNTY BANNER

Building Summary

Data last updated on: 3/25/2026     Ownership current as of: 3/18/2026     Tax Year: 2026
REID 1003831

PIN # 9632-49-2466

Location Address Property Description
221 FIDDLERS LN BOUNDARY SURVEY 1.77 ACRES PL:2024-15373 UN:SPAULLRS BU:1-6-2006
   
Property Owner Owner's Mailing Address
WYNNE, JOSHUA DYLAN;WYNNE, CHARLOTTE MICHELLE
4595 FRIAR TUCK LN
SARASOTA FL 34232
Parcel
Buildings
Misc Improvements
Land
Deeds
Notes
Sales
Photos
Tax Bill
Map
Building Location Address
221 FIDDLERS LN
Card   of  1
Building Details

Building Type SINGLE FAMILY
Building Use MA-SINGLE FAMILY
Units 0
Living Area (SQFT) 1505
Number of Stories 1.30
Style LOG
Foundation CONCRETE BLOCK
Exterior LOG
Const Type WJ
Heating FORCED AIR
Air Cond NO AIR CONDITIONING
Plumbing Baths (Full):   2
Baths (Half):   1
Extra Fixtures:   2
Total Plumbing Fixtures:   10 
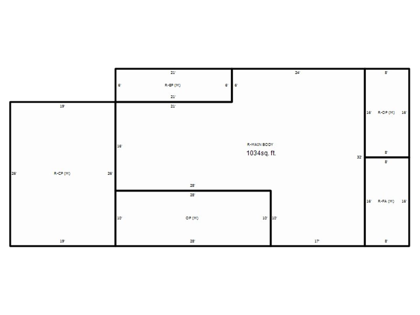
Main Body (SQFT) 1034
Building Description

Year Built 1976
Additions 8
Effective Year 2017
Remodeled 0
Interior Adj.
Other Features
Building Total & Improvement Details

Grade B 128%
Percentage Complete 100
Total Adjusted Replacement Cost New $422,535
Physical Depreciation (% Bad) 0%
Depreciated Value $397,183
Economic Depreciation (% Bad) 0%
Functional Depreciation (% Bad) 0%
Total Depreciated Value $397,183
Market Area Factor 1.00
Building Value $397,200
Misc Improvements Value $30,700
Total Improvement Value $427,900

Assessed Land Value $90,200
   
Assessed Total Value $518,100



Addition Summary 
StoryTypeCodeArea
1.00 OPEN FRAME PORCH (MAIN) MAIN 280
1.00 FRAME ADDITION (MAIN) MAIN 128
1.00 OPEN FRAME PORCH (MAIN) MAIN 128
1.00 ENCLOSED FRAME PORCH (MAIN) MAIN 126
1.00 CARPORT (MAIN) MAIN 494
1.00 UNFINISHED BASEMENT BSMT 1034
1.00 UPPER STORY STRY 343
1.00 UNFINISHED ATTIC ATTF 136
 
Other Improvements 
UnitsDescriptionItemCodeYear% BadValue
323 SIZE UTILITY BLDG-FINISHED 2005 50 6500
145 SIZE PORCH 2005 50 1600
30X40 DIMENSIONS METAL BUILDING (RSF) 2025 1 22600
 


Building Sketch
Photograph
Building Sketch Building Photo
(Click sketch for bigger image)





Disclaimer:

This information has been collected for inventory of property per NCGS 105-317(a)(3) and is provided in order to enable property owners to ascertain the method, rules, and standards of value by which this property has been appraised. This information is compiled from recorded deeds, plats, and other public records data. Users of this information are hereby notified that the aforementioned sources should be consulted for verification of the information contained in this report. The county assumes no legal responsiblity.