HENDERSON COUNTY BANNER

Building Summary

Data last updated on: 3/25/2026     Ownership current as of: 3/18/2026     Tax Year: 2026
REID 1011031

PIN # 9599-24-9648

Location Address Property Description
123 LYTLE RD ROBIN M PRIDMORE LO:3R PL:2008-7484
   
Property Owner Owner's Mailing Address
LYTLE, PAUL L.
267 LYTLE RD
HENDERSONVILLE NC 28792
Parcel
Buildings
Misc Improvements
Land
Deeds
Notes
Sales
Photos
Tax Bill
Map
Building Location Address
123 LYTLE RD
Card   of  1
Building Details

Building Type SINGLE FAMILY
Building Use MA-SINGLE FAMILY
Units 0
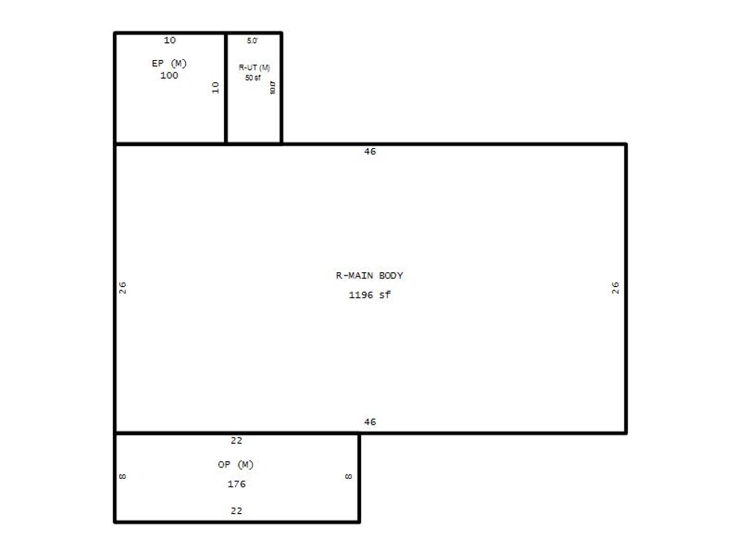
Living Area (SQFT) 1196
Number of Stories 1.00
Style CONVENTIONAL
Foundation CONCRETE BLOCK
Exterior BRICK
Const Type WJ
Heating FORCED AIR
Air Cond 100% CENTRAL A/C
Plumbing Baths (Full):   1
Baths (Half):   0
Extra Fixtures:   2
Total Plumbing Fixtures:   5 
Main Body (SQFT) 1196
Building Description

Year Built 1962
Additions 4
Effective Year 1972
Remodeled 0
Interior Adj.
Other Features
Building Total & Improvement Details

Grade C- 95%
Percentage Complete 100
Total Adjusted Replacement Cost New $253,719
Physical Depreciation (% Bad) 0%
Depreciated Value $124,322
Economic Depreciation (% Bad) 0%
Functional Depreciation (% Bad) 0%
Total Depreciated Value $124,322
Market Area Factor 1.00
Building Value $124,300
Misc Improvements Value
Total Improvement Value $124,300

Assessed Land Value $28,800
   
Assessed Total Value $153,100



Addition Summary 
StoryTypeCodeArea
1.00 OPEN FRAME PORCH (MAIN) MAIN 176
1.00 ENCLOSED FRAME PORCH (MAIN) MAIN 100
1.00 UTILITY ROOM (MAIN) MAIN 50
1.00 UNFINISHED BASEMENT BSMT 1196
 
Other Improvements 
 


Building Sketch
Photograph
Building Sketch Building Photo
(Click sketch for bigger image)





Disclaimer:

This information has been collected for inventory of property per NCGS 105-317(a)(3) and is provided in order to enable property owners to ascertain the method, rules, and standards of value by which this property has been appraised. This information is compiled from recorded deeds, plats, and other public records data. Users of this information are hereby notified that the aforementioned sources should be consulted for verification of the information contained in this report. The county assumes no legal responsiblity.