HENDERSON COUNTY BANNER

Building Summary

Data last updated on: 3/25/2026     Ownership current as of: 3/18/2026     Tax Year: 2026
REID 101102

PIN # 9559-96-5503

Location Address Property Description
123 LONGVIEW DR WANTESKA LO:53,PT52
   
Property Owner Owner's Mailing Address
LISTROM, JOHN WYATT
123 LONGVIEW DR
HENDERSONVILLE NC 28791
Parcel
Buildings
Misc Improvements
Land
Deeds
Notes
Sales
Photos
Tax Bill
Map
Building Location Address
123 LONGVIEW DR
Card   of  1
Building Details

Building Type SINGLE FAMILY
Building Use MA-SINGLE FAMILY
Units 0
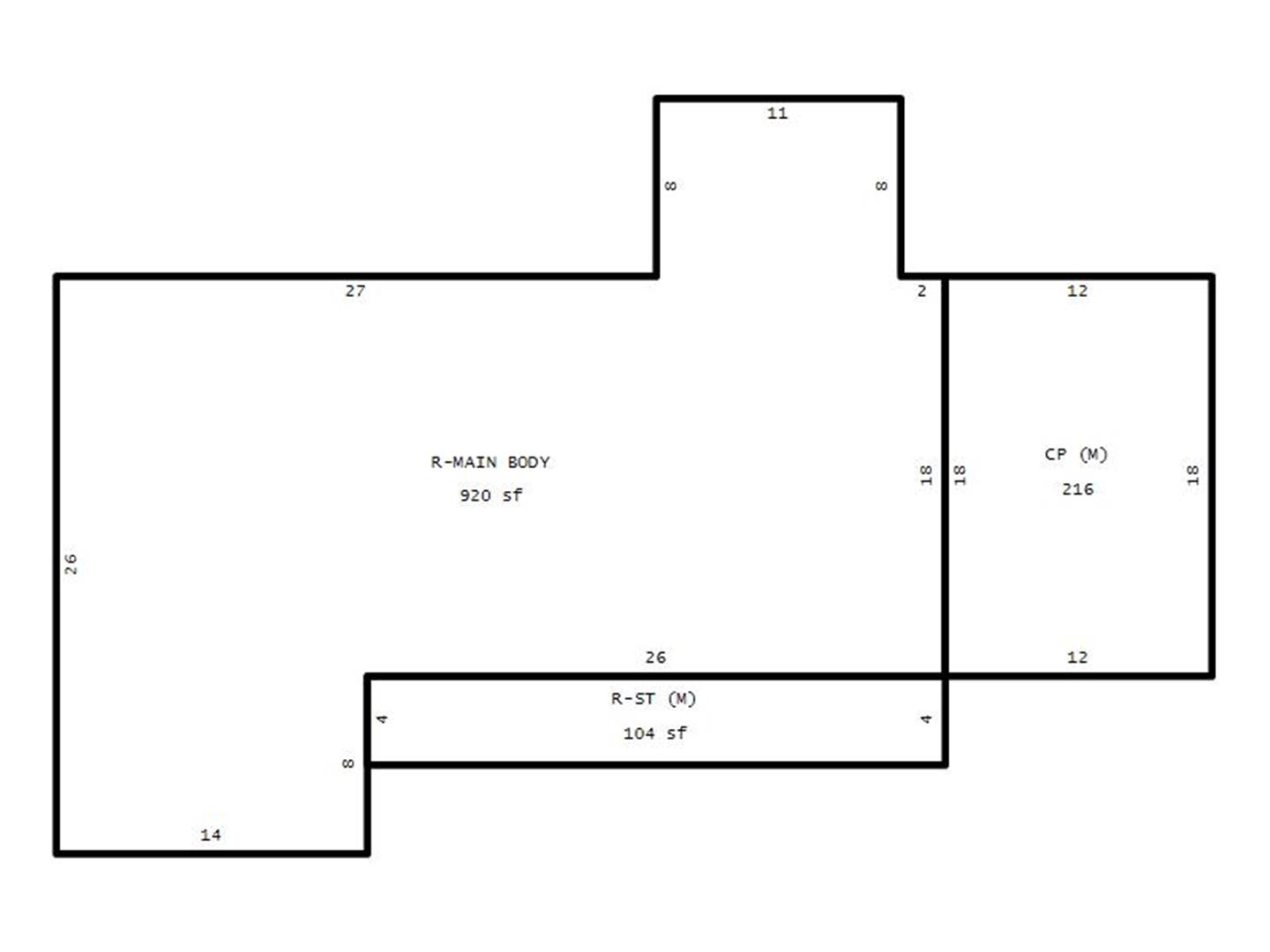
Living Area (SQFT) 920
Number of Stories 1.00
Style RANCH
Foundation CONCRETE BLOCK
Exterior WOOD SIDING
Const Type WJ
Heating FORCED AIR
Air Cond 100% CENTRAL A/C
Plumbing Baths (Full):   1
Baths (Half):   0
Extra Fixtures:   2
Total Plumbing Fixtures:   5 
Main Body (SQFT) 920
Building Description

Year Built 1950
Additions 3
Effective Year 2005
Remodeled 0
Interior Adj.
Other Features
Building Total & Improvement Details

Grade C 100%
Percentage Complete 100
Total Adjusted Replacement Cost New $189,283
Physical Depreciation (% Bad) 0%
Depreciated Value $155,212
Economic Depreciation (% Bad) 0%
Functional Depreciation (% Bad) 0%
Total Depreciated Value $155,212
Market Area Factor 1.00
Building Value $155,200
Misc Improvements Value
Total Improvement Value $155,200

Assessed Land Value $58,500
   
Assessed Total Value $213,700



Addition Summary 
StoryTypeCodeArea
1.00 STOOP (MAIN) MAIN 104
1.00 CARPORT (MAIN) MAIN 216
1.00 UNFINISHED BASEMENT BSMT 230
 
Other Improvements 
 


Building Sketch
Photograph
Building Sketch Building Photo
(Click sketch for bigger image)





Disclaimer:

This information has been collected for inventory of property per NCGS 105-317(a)(3) and is provided in order to enable property owners to ascertain the method, rules, and standards of value by which this property has been appraised. This information is compiled from recorded deeds, plats, and other public records data. Users of this information are hereby notified that the aforementioned sources should be consulted for verification of the information contained in this report. The county assumes no legal responsiblity.