HENDERSON COUNTY BANNER

Building Summary

Data last updated on: 3/25/2026     Ownership current as of: 3/18/2026     Tax Year: 2026
REID 111731

PIN # 9559-96-5621

Location Address Property Description
127 LONGVIEW DR SR1396 ON LONGVIEW DR
   
Property Owner Owner's Mailing Address
BROENNER, CORNEL
155 WARREN LN
HENDERSONVILLE NC 28739
Parcel
Buildings
Misc Improvements
Land
Deeds
Notes
Sales
Photos
Tax Bill
Map
Building Location Address
127 LONGVIEW DR
Card   of  1
Building Details

Building Type SINGLE FAMILY
Building Use MA-SINGLE FAMILY
Units 0
Living Area (SQFT) 1196
Number of Stories 1.00
Style RANCH
Foundation CONCRETE BLOCK
Exterior BRICK
Const Type WJ
Heating WALL OR FLOOR FURNAC
Air Cond NO AIR CONDITIONING
Plumbing Baths (Full):   1
Baths (Half):   0
Extra Fixtures:   2
Total Plumbing Fixtures:   5 
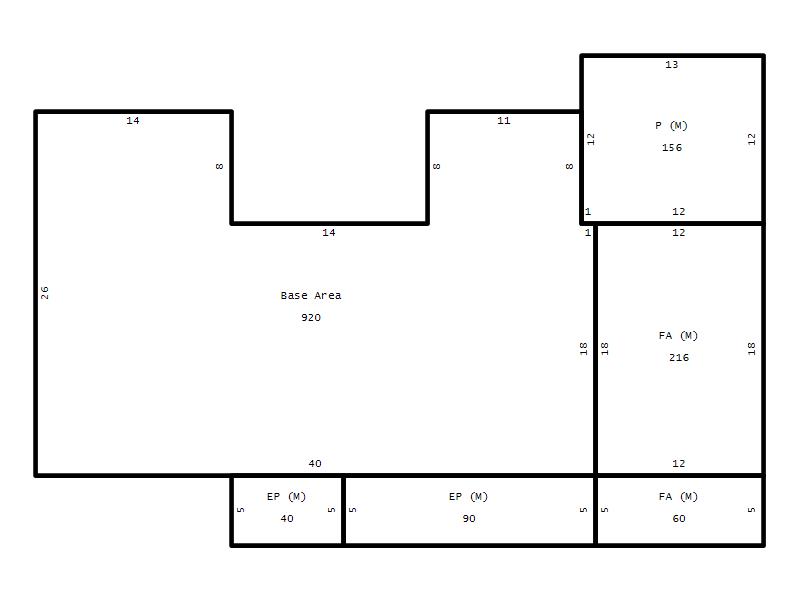
Main Body (SQFT) 920
Building Description

Year Built 1960
Additions 6
Effective Year 1970
Remodeled 0
Interior Adj.
Other Features
Building Total & Improvement Details

Grade C 100%
Percentage Complete 100
Total Adjusted Replacement Cost New $244,458
Physical Depreciation (% Bad) 0%
Depreciated Value $114,895
Economic Depreciation (% Bad) 0%
Functional Depreciation (% Bad) 0%
Total Depreciated Value $114,895
Market Area Factor 1.00
Building Value $114,900
Misc Improvements Value $9,500
Total Improvement Value $124,400

Assessed Land Value $63,600
   
Assessed Total Value $188,000



Addition Summary 
StoryTypeCodeArea
1.00 ENCLOSED FRAME PORCH (MAIN) MAIN 90
1.00 ENCLOSED FRAME PORCH (MAIN) MAIN 40
1.00 PATIO (MAIN) MAIN 156
1.00 FRAME ADDITION (MAIN) MAIN 216
1.00 FRAME ADDITION (MAIN) MAIN 60
1.00 UNFINISHED BASEMENT BSMT 230
 
Other Improvements 
UnitsDescriptionItemCodeYear% BadValue
18x35 DIMENSIONS DETACHED GARAGE 1900 80 5300
10x25 DIMENSIONS CANOPY 1900 80 600
20x45 DIMENSIONS BARN 1900 80 3600
 


Building Sketch
Photograph
Building Sketch Building Photo
(Click sketch for bigger image)





Disclaimer:

This information has been collected for inventory of property per NCGS 105-317(a)(3) and is provided in order to enable property owners to ascertain the method, rules, and standards of value by which this property has been appraised. This information is compiled from recorded deeds, plats, and other public records data. Users of this information are hereby notified that the aforementioned sources should be consulted for verification of the information contained in this report. The county assumes no legal responsiblity.