HENDERSON COUNTY BANNER

Building Summary

Data last updated on: 3/25/2026     Ownership current as of: 3/18/2026     Tax Year: 2026
REID 10000697

PIN # 9569-14-6904

Location Address Property Description
302 LYNWOOD CIR LYNNWOOD LO:58, PT 57 PL:B-158
   
Property Owner Owner's Mailing Address
ABRAHAM RAY AND JILL WALLEN LIVING TRUST;WALLEN, JILL DUNLAP CO-TRUSTEE;WALLEN, ABRAHAM RAY CO-TRUSTEE
720B N GROVE ST
HENDERSONVILLE NC 28792
Parcel
Buildings
Misc Improvements
Land
Deeds
Notes
Sales
Photos
Tax Bill
Map
Building Location Address
302 LYNWOOD CIR
Card   of  1
Building Details

Building Type SINGLE FAMILY
Building Use MA-SINGLE FAMILY
Units 0
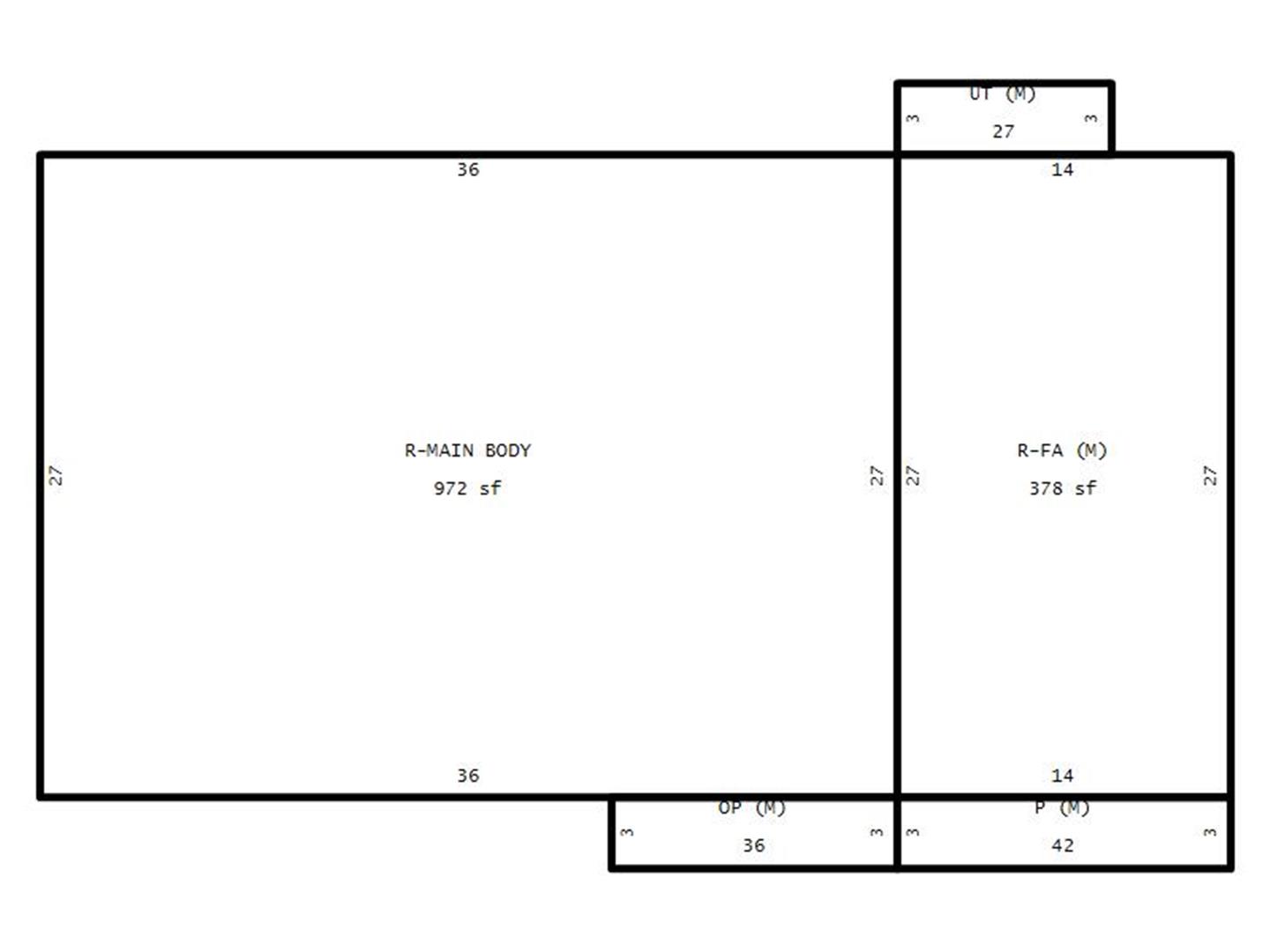
Living Area (SQFT) 1350
Number of Stories 1.00
Style RANCH
Foundation SLAB
Exterior WOOD SIDING
Const Type WJ
Heating ELECTRIC HEAT
Air Cond NO AIR CONDITIONING
Plumbing Baths (Full):   1
Baths (Half):   0
Extra Fixtures:   2
Total Plumbing Fixtures:   5 
Main Body (SQFT) 972
Building Description

Year Built 1981
Additions 4
Effective Year 1984
Remodeled 0
Interior Adj.
Other Features
Building Total & Improvement Details

Grade C- 95%
Percentage Complete 100
Total Adjusted Replacement Cost New $227,609
Physical Depreciation (% Bad) 0%
Depreciated Value $138,841
Economic Depreciation (% Bad) 0%
Functional Depreciation (% Bad) 0%
Total Depreciated Value $138,841
Market Area Factor 1.00
Building Value $138,800
Misc Improvements Value
Total Improvement Value $138,800

Assessed Land Value $58,500
   
Assessed Total Value $197,300



Addition Summary 
StoryTypeCodeArea
1.00 FRAME ADDITION (MAIN) MAIN 378
1.00 OPEN FRAME PORCH (MAIN) MAIN 36
1.00 PATIO (MAIN) MAIN 42
1.00 UTILITY ROOM (MAIN) MAIN 27
 
Other Improvements 
 


Building Sketch
Photograph
Building Sketch Building Photo
(Click sketch for bigger image)





Disclaimer:

This information has been collected for inventory of property per NCGS 105-317(a)(3) and is provided in order to enable property owners to ascertain the method, rules, and standards of value by which this property has been appraised. This information is compiled from recorded deeds, plats, and other public records data. Users of this information are hereby notified that the aforementioned sources should be consulted for verification of the information contained in this report. The county assumes no legal responsiblity.