HENDERSON COUNTY BANNER

Building Summary

Data last updated on: 3/25/2026     Ownership current as of: 3/18/2026     Tax Year: 2026
REID 10009421

PIN # 9599-47-5520

Location Address Property Description
39 KHIAUS LN MINOR SUBDIVISION 0.643 ACRES LO:4 PL:2022-14162
   
Property Owner Owner's Mailing Address
GOODSON, CAMDEN MICHAELA;GOODSON, REX FLOYD;GOODSON, CLARA GAIL
409 E PINE HILL LN
HENDERSONVILLE NC 28792
Parcel
Buildings
Misc Improvements
Land
Deeds
Notes
Sales
Photos
Tax Bill
Map
Building Location Address
39 KHIAUS LN
Card   of  1
Building Details

Building Type SINGLE FAMILY
Building Use MA-SINGLE FAMILY
Units 0
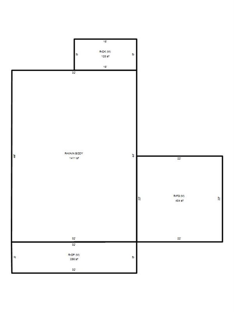
Living Area (SQFT) 1410
Number of Stories 1.00
Style CONVENTIONAL
Foundation CRAWL
Exterior MASONITE SIDING
Const Type WJ
Heating HEAT PUMP
Air Cond 100% CENTRAL A/C
Plumbing Baths (Full):   2
Baths (Half):   0
Extra Fixtures:   2
Total Plumbing Fixtures:   8 
Main Body (SQFT) 1410
Building Description

Year Built 2024
Additions 3
Effective Year 2024
Remodeled 0
Interior Adj.
Other Features
Building Total & Improvement Details

Grade C+ 110%
Percentage Complete 100
Total Adjusted Replacement Cost New $310,970
Physical Depreciation (% Bad) 0%
Depreciated Value $307,860
Economic Depreciation (% Bad) 0%
Functional Depreciation (% Bad) 0%
Total Depreciated Value $307,860
Market Area Factor 1.00
Building Value $307,900
Misc Improvements Value
Total Improvement Value $307,900

Assessed Land Value $40,500
   
Assessed Total Value $348,400



Addition Summary 
StoryTypeCodeArea
1.00 OPEN FRAME PORCH (MAIN) MAIN 256
1.00 FRAME ATTACHED GARAGE (MAIN) MAIN 484
1.00 DECK (MAIN) MAIN 128
 
Other Improvements 
 


Building Sketch
Photograph
Building Sketch Building Photo
(Click sketch for bigger image)





Disclaimer:

This information has been collected for inventory of property per NCGS 105-317(a)(3) and is provided in order to enable property owners to ascertain the method, rules, and standards of value by which this property has been appraised. This information is compiled from recorded deeds, plats, and other public records data. Users of this information are hereby notified that the aforementioned sources should be consulted for verification of the information contained in this report. The county assumes no legal responsiblity.