HENDERSON COUNTY BANNER

Building Summary

Data last updated on: 3/25/2026     Ownership current as of: 3/18/2026     Tax Year: 2026
REID 10012997

PIN # 9680-91-4043

Location Address Property Description
660 PACE RD RECOMBINATION PER PLAT 15711 LO:B PL:2024-15711
   
Property Owner Owner's Mailing Address
FLOYD, JOSHUA
660 PACE RD
HENDERSONVILLE NC 28792
Parcel
Buildings
Misc Improvements
Land
Deeds
Notes
Sales
Photos
Tax Bill
Map
Building Location Address
660 PACE RD
Card   of  1
Building Details

Building Type SINGLE FAMILY
Building Use MA-SINGLE FAMILY
Units 0
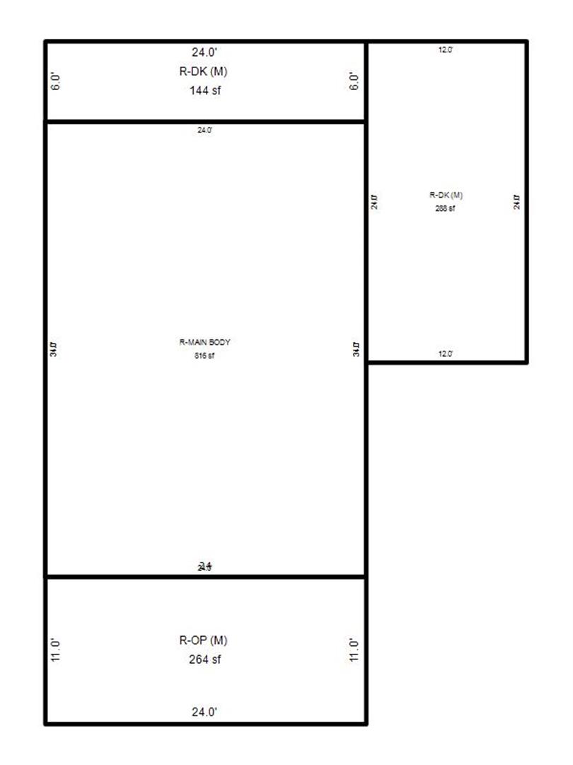
Living Area (SQFT) 816
Number of Stories 1.00
Style CONVENTIONAL
Foundation CRAWL
Exterior WOOD SIDING
Const Type WJ
Heating HEAT PUMP
Air Cond 100% CENTRAL A/C
Plumbing Baths (Full):   1
Baths (Half):   1
Extra Fixtures:   2
Total Plumbing Fixtures:   7 
Main Body (SQFT) 816
Building Description

Year Built 1940
Additions 4
Effective Year 2020
Remodeled 0
Interior Adj.
Other Features
Building Total & Improvement Details

Grade B- 120%
Percentage Complete 100
Total Adjusted Replacement Cost New $227,619
Physical Depreciation (% Bad) 0%
Depreciated Value $220,790
Economic Depreciation (% Bad) 0%
Functional Depreciation (% Bad) 0%
Total Depreciated Value $220,790
Market Area Factor 1.00
Building Value $220,800
Misc Improvements Value $2,300
Total Improvement Value $223,100

Assessed Land Value $33,500
   
Assessed Total Value $256,600



Addition Summary 
StoryTypeCodeArea
1.00 DECK (MAIN) MAIN 144
1.00 OPEN FRAME PORCH (MAIN) MAIN 264
1.00 DECK (MAIN) MAIN 288
1.00 PATIO (MAIN) MAIN 240
 
Other Improvements 
UnitsDescriptionItemCodeYear% BadValue
12X24 DIMENSIONS PATIO 2022 2 2300
 


Building Sketch
Photograph
Building Sketch Building Photo
(Click sketch for bigger image)





Disclaimer:

This information has been collected for inventory of property per NCGS 105-317(a)(3) and is provided in order to enable property owners to ascertain the method, rules, and standards of value by which this property has been appraised. This information is compiled from recorded deeds, plats, and other public records data. Users of this information are hereby notified that the aforementioned sources should be consulted for verification of the information contained in this report. The county assumes no legal responsiblity.