HENDERSON COUNTY BANNER

Building Summary

Data last updated on: 3/25/2026     Ownership current as of: 3/18/2026     Tax Year: 2026
REID 114660

PIN # 9569-26-9795

Location Address Property Description
318 STONEY MOUNTAIN RD PALANZA PARK LO:60,61,66,67 BL:F PL:B-168
   
Property Owner Owner's Mailing Address
MORRIS, LUKE S.
318 STONEY MOUNTAIN RD
HENDERSONVILLE NC 28791
Parcel
Buildings
Misc Improvements
Land
Deeds
Notes
Sales
Photos
Tax Bill
Map
Building Location Address
318 STONEY MOUNTAIN RD
Card   of  1
Building Details

Building Type SINGLE FAMILY
Building Use MA-SINGLE FAMILY
Units 0
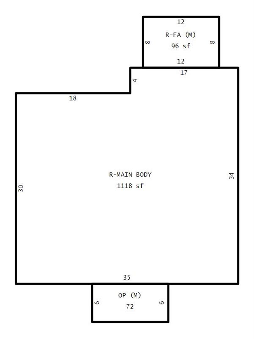
Living Area (SQFT) 1214
Number of Stories 1.00
Style CONVENTIONAL
Foundation CONCRETE BLOCK
Exterior ASB/WOOD SHINGLES
Const Type WJ
Heating FORCED AIR
Air Cond 100% CENTRAL A/C
Plumbing Baths (Full):   1
Baths (Half):   0
Extra Fixtures:   2
Total Plumbing Fixtures:   5 
Main Body (SQFT) 1118
Building Description

Year Built 1952
Additions 3
Effective Year 2000
Remodeled 0
Interior Adj.
Other Features
Building Total & Improvement Details

Grade C 100%
Percentage Complete 100
Total Adjusted Replacement Cost New $240,274
Physical Depreciation (% Bad) 0%
Depreciated Value $185,011
Economic Depreciation (% Bad) 0%
Functional Depreciation (% Bad) 0%
Total Depreciated Value $185,011
Market Area Factor 1.00
Building Value $185,000
Misc Improvements Value
Total Improvement Value $185,000

Assessed Land Value $85,200
   
Assessed Total Value $270,200



Addition Summary 
StoryTypeCodeArea
1.00 OPEN FRAME PORCH (MAIN) MAIN 72
1.00 FRAME ADDITION (MAIN) MAIN 96
1.00 UNFINISHED BASEMENT BSMT 559
 
Other Improvements 
 


Building Sketch
Photograph
Building Sketch Building Photo
(Click sketch for bigger image)





Disclaimer:

This information has been collected for inventory of property per NCGS 105-317(a)(3) and is provided in order to enable property owners to ascertain the method, rules, and standards of value by which this property has been appraised. This information is compiled from recorded deeds, plats, and other public records data. Users of this information are hereby notified that the aforementioned sources should be consulted for verification of the information contained in this report. The county assumes no legal responsiblity.