HENDERSON COUNTY BANNER

Building Summary

Data last updated on: 3/25/2026     Ownership current as of: 3/18/2026     Tax Year: 2026
REID 200558

PIN # 9598-17-0555

Location Address Property Description
1600 ORCHARD RD SR1796 ON ORCHARD RD
   
Property Owner Owner's Mailing Address
KNOX, IVANNA;LITTLEJOHN, NICHOLAS
1600 ORCHARD RD
FLAT ROCK NC 28731
Parcel
Buildings
Misc Improvements
Land
Deeds
Notes
Sales
Photos
Tax Bill
Map
Building Location Address
1600 ORCHARD RD
Card   of  1
Building Details

Building Type SINGLE FAMILY
Building Use MA-SINGLE FAMILY
Units 0
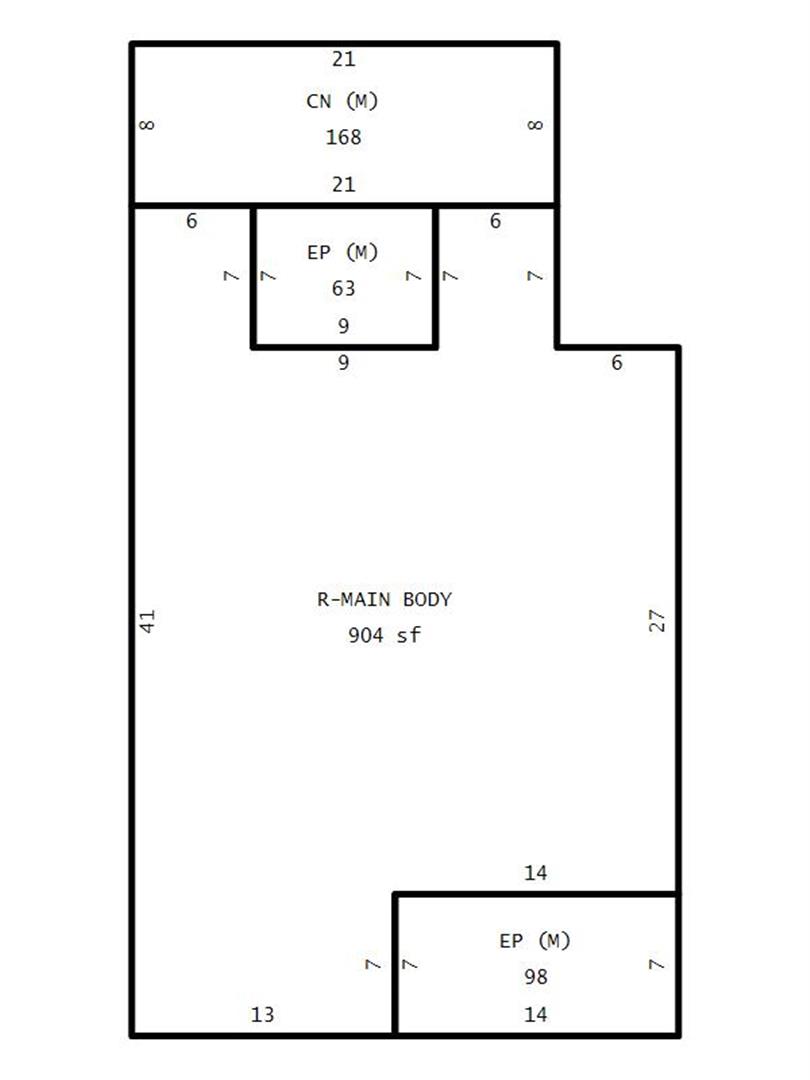
Living Area (SQFT) 904
Number of Stories 1.00
Style CONVENTIONAL
Foundation CONCRETE BLOCK
Exterior ASB/WOOD SHINGLES
Const Type WJ
Heating FORCED AIR
Air Cond NO AIR CONDITIONING
Plumbing Baths (Full):   1
Baths (Half):   0
Extra Fixtures:   2
Total Plumbing Fixtures:   5 
Main Body (SQFT) 904
Building Description

Year Built 1937
Additions 4
Effective Year 1982
Remodeled 0
Interior Adj.
Other Features
Building Total & Improvement Details

Grade C- 95%
Percentage Complete 100
Total Adjusted Replacement Cost New $185,738
Physical Depreciation (% Bad) 0%
Depreciated Value $109,585
Economic Depreciation (% Bad) 0%
Functional Depreciation (% Bad) 0%
Total Depreciated Value $109,585
Market Area Factor 1.00
Building Value $109,600
Misc Improvements Value $2,200
Total Improvement Value $111,800

Assessed Land Value $38,100
   
Assessed Total Value $149,900



Addition Summary 
StoryTypeCodeArea
1.00 ENCLOSED FRAME PORCH (MAIN) MAIN 98
1.00 CANOPY (MAIN) MAIN 168
1.00 ENCLOSED FRAME PORCH (MAIN) MAIN 63
1.00 UNFINISHED BASEMENT BSMT 660
 
Other Improvements 
UnitsDescriptionItemCodeYear% BadValue
12x16 DIMENSIONS CANOPY 2008 40 1400
18X22 DIMENSIONS POULTRY HOUSE 1937 80 800
 


Building Sketch
Photograph
Building Sketch Building Photo
(Click sketch for bigger image)





Disclaimer:

This information has been collected for inventory of property per NCGS 105-317(a)(3) and is provided in order to enable property owners to ascertain the method, rules, and standards of value by which this property has been appraised. This information is compiled from recorded deeds, plats, and other public records data. Users of this information are hereby notified that the aforementioned sources should be consulted for verification of the information contained in this report. The county assumes no legal responsiblity.