HENDERSON COUNTY BANNER

Building Summary

Data last updated on: 3/25/2026     Ownership current as of: 3/18/2026     Tax Year: 2026
REID 200891

PIN # 9588-72-1679

Location Address Property Description
603 S ORCHARD RD SR1792 ON ORCHARD ROAD
   
Property Owner Owner's Mailing Address
BRUCE, NICHOLAS R;BRUCE, STEFANIE KRISTEN
603 S ORCHARD RD
FLAT ROCK NC 28731
Parcel
Buildings
Misc Improvements
Land
Deeds
Notes
Sales
Photos
Tax Bill
Map
Building Location Address
603 S ORCHARD RD
Card   of  1
Building Details

Building Type SINGLE FAMILY
Building Use MA-SINGLE FAMILY
Units 0
Living Area (SQFT) 1608
Number of Stories 1.00
Style RANCH
Foundation CONCRETE BLOCK
Exterior WOOD SIDING
Const Type WJ
Heating FORCED AIR
Air Cond 100% CENTRAL A/C
Plumbing Baths (Full):   2
Baths (Half):   0
Extra Fixtures:   2
Total Plumbing Fixtures:   8 
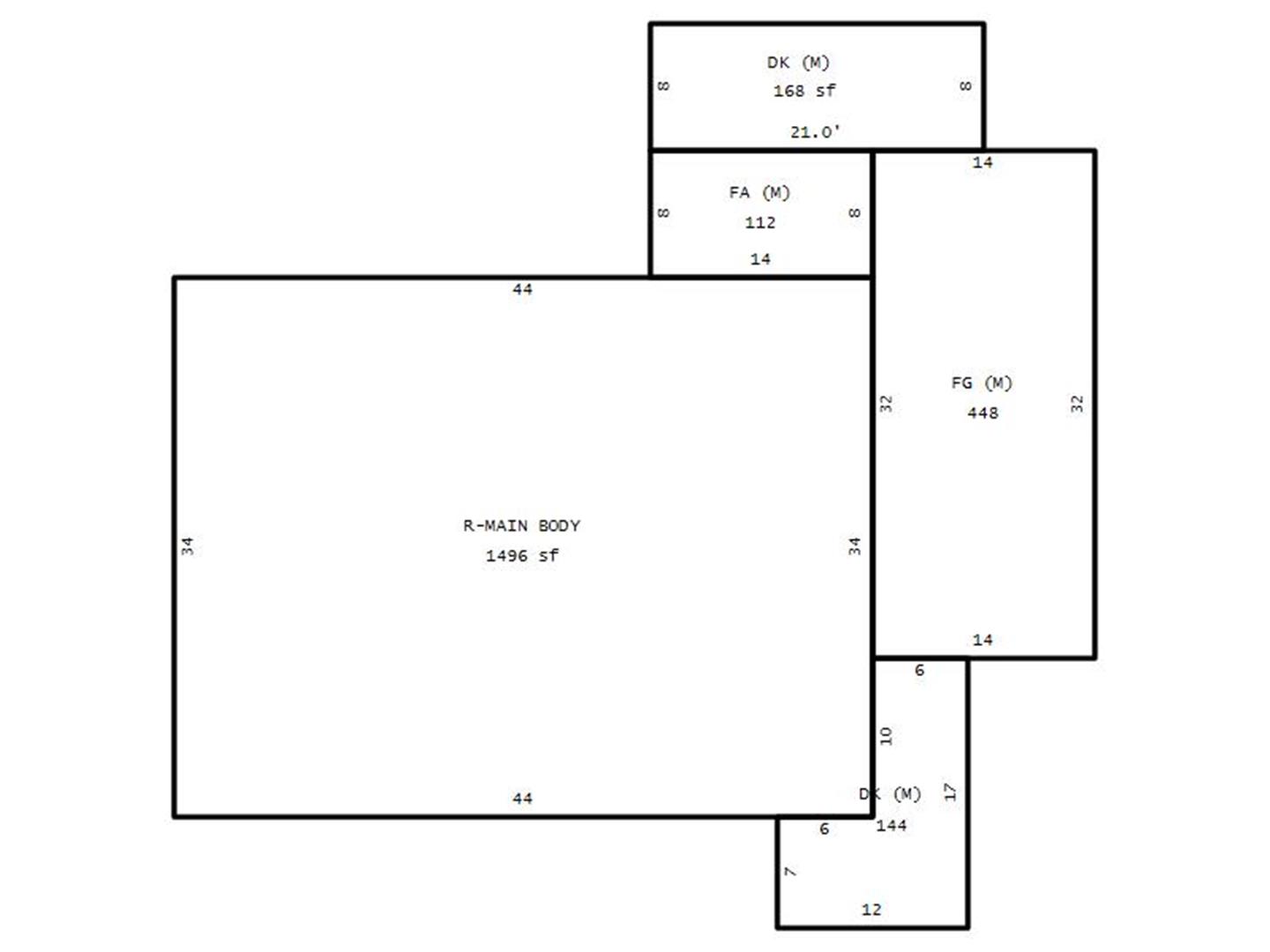
Main Body (SQFT) 1496
Building Description

Year Built 1985
Additions 4
Effective Year 1992
Remodeled 0
Interior Adj.
Other Features
Building Total & Improvement Details

Grade D 85%
Percentage Complete 100
Total Adjusted Replacement Cost New $262,894
Physical Depreciation (% Bad) 0%
Depreciated Value $181,397
Economic Depreciation (% Bad) 0%
Functional Depreciation (% Bad) 0%
Total Depreciated Value $181,397
Market Area Factor 1.00
Building Value $181,400
Misc Improvements Value $4,100
Total Improvement Value $185,500

Assessed Land Value $38,600
   
Assessed Total Value $224,100



Addition Summary 
StoryTypeCodeArea
1.00 DECK (MAIN) MAIN 144
1.00 FRAME ADDITION (MAIN) MAIN 112
1.00 DECK (MAIN) MAIN 168
1.00 FRAME ATTACHED GARAGE (MAIN) MAIN 448
 
Other Improvements 
UnitsDescriptionItemCodeYear% BadValue
11x21 DIMENSIONS UTILITY BLDG-UNFINISHED 1900 80 600
12X48 DIMENSIONS SHED-OPEN SIDES 1900 80 1200
25X18 DIMENSIONS CANOPY 1900 80 1100
25X18 DIMENSIONS UTILITY BLDG-UNFINISHED 1900 80 1200
 


Building Sketch
Photograph
Building Sketch Building Photo
(Click sketch for bigger image)





Disclaimer:

This information has been collected for inventory of property per NCGS 105-317(a)(3) and is provided in order to enable property owners to ascertain the method, rules, and standards of value by which this property has been appraised. This information is compiled from recorded deeds, plats, and other public records data. Users of this information are hereby notified that the aforementioned sources should be consulted for verification of the information contained in this report. The county assumes no legal responsiblity.