HENDERSON COUNTY BANNER

Building Summary

Data last updated on: 3/25/2026     Ownership current as of: 3/18/2026     Tax Year: 2026
REID 201032

PIN # 9589-91-2669

Location Address Property Description
1443 DANA RD
   
Property Owner Owner's Mailing Address
JW MARTIN PROPERTIES LLC
409 LAMP POST DR
ZIRCONIA NC 28790
Parcel
Buildings
Misc Improvements
Land
Deeds
Notes
Sales
Photos
Tax Bill
Map
Building Location Address
1443 DANA RD
Card   of  1
Building Details

Building Type SINGLE FAMILY
Building Use MA-SINGLE FAMILY
Units 0
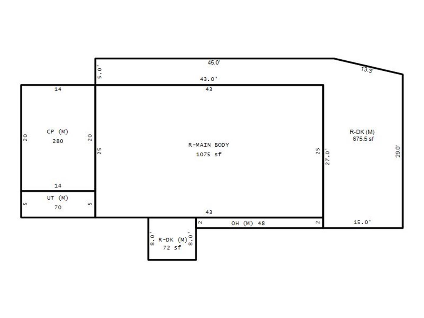
Living Area (SQFT) 1698
Number of Stories 1.00
Style SPLIT LEVEL
Foundation MASONRY
Exterior BRICK
Const Type WJ
Heating ELECTRIC HEAT
Air Cond 100% CENTRAL A/C
Plumbing Baths (Full):   2
Baths (Half):   0
Extra Fixtures:   2
Total Plumbing Fixtures:   8 
Main Body (SQFT) 1075
Building Description

Year Built 1979
Additions 6
Effective Year 2010
Remodeled 0
Interior Adj.
Other Features
Building Total & Improvement Details

Grade B 128%
Percentage Complete 100
Total Adjusted Replacement Cost New $346,690
Physical Depreciation (% Bad) 0%
Depreciated Value $305,087
Economic Depreciation (% Bad) 0%
Functional Depreciation (% Bad) 0%
Total Depreciated Value $305,087
Market Area Factor 1.00
Building Value $305,100
Misc Improvements Value $3,200
Total Improvement Value $308,300

Assessed Land Value $43,400
   
Assessed Total Value $351,700



Addition Summary 
StoryTypeCodeArea
1.00 OVERHANG (MAIN) MAIN 48
1.00 DECK (MAIN) MAIN 72
1.00 UTILITY ROOM (MAIN) MAIN 70
1.00 CARPORT (MAIN) MAIN 280
1.00 DECK (MAIN) MAIN 676
1.00 FULLY FINISHED BASEMENT BSMT 575
 
Other Improvements 
UnitsDescriptionItemCodeYear% BadValue
16x24 DIMENSIONS SHED-OPEN SIDES 1970 80 700
21X49 DIMENSIONS POLE BUILDING 1980 80 2500
 


Building Sketch
Photograph
Building Sketch Building Photo
(Click sketch for bigger image)





Disclaimer:

This information has been collected for inventory of property per NCGS 105-317(a)(3) and is provided in order to enable property owners to ascertain the method, rules, and standards of value by which this property has been appraised. This information is compiled from recorded deeds, plats, and other public records data. Users of this information are hereby notified that the aforementioned sources should be consulted for verification of the information contained in this report. The county assumes no legal responsiblity.