HENDERSON COUNTY BANNER

Building Summary

Data last updated on: 3/25/2026     Ownership current as of: 3/18/2026     Tax Year: 2026
REID 801141

PIN # 9632-43-4117

Location Address Property Description
339 MT GILEAD CHURCH RD ON MT GILEAD RD UN:2-27-1981
   
Property Owner Owner's Mailing Address
HEIL, MARGARET LYNN
339 MT GILEAD CHURCH RD
MILLS RIVER NC 28759
Parcel
Buildings
Misc Improvements
Land
Deeds
Notes
Sales
Photos
Tax Bill
Map
Building Location Address
339 MT GILEAD CHURCH RD
Card   of  1
Building Details

Building Type SINGLE FAMILY
Building Use MA-SINGLE FAMILY
Units 0
Living Area (SQFT) 1724
Number of Stories 1.00
Style RANCH
Foundation CONCRETE BLOCK
Exterior WOOD SIDING
Const Type WJ
Heating FORCED AIR
Air Cond NO AIR CONDITIONING
Plumbing Baths (Full):   2
Baths (Half):   1
Extra Fixtures:   2
Total Plumbing Fixtures:   10 
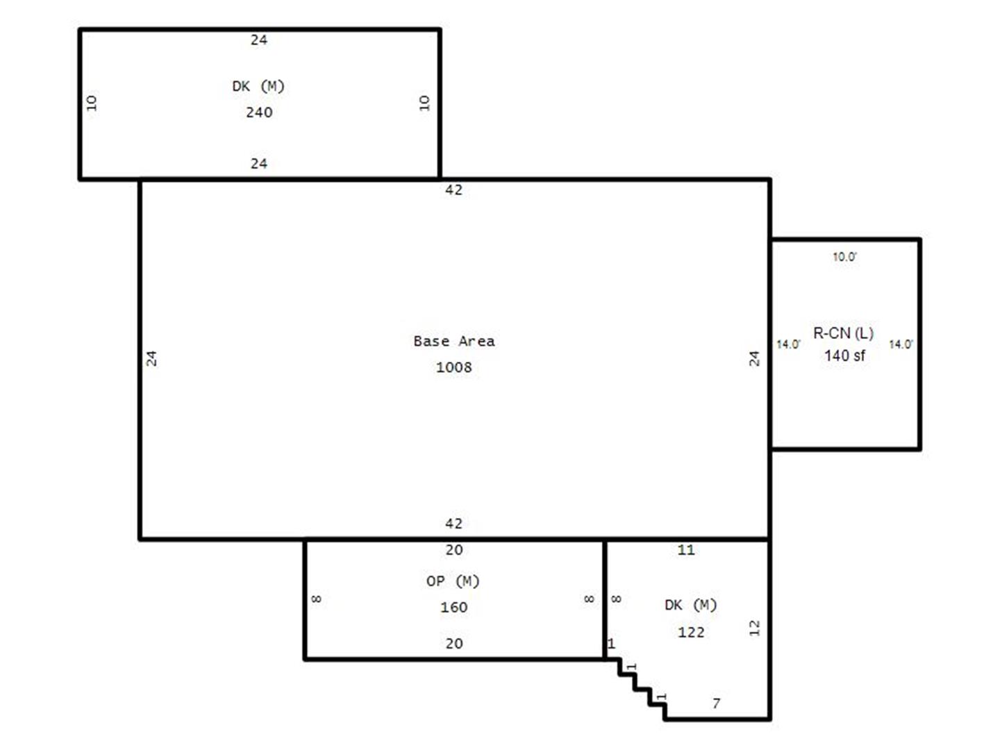
Main Body (SQFT) 1008
Building Description

Year Built 1982
Additions 6
Effective Year 2017
Remodeled 0
Interior Adj.
Other Features
Building Total & Improvement Details

Grade B- 120%
Percentage Complete 100
Total Adjusted Replacement Cost New $314,150
Physical Depreciation (% Bad) 0%
Depreciated Value $295,301
Economic Depreciation (% Bad) 0%
Functional Depreciation (% Bad) 0%
Total Depreciated Value $295,301
Market Area Factor 1.00
Building Value $295,300
Misc Improvements Value
Total Improvement Value $295,300

Assessed Land Value $61,600
   
Assessed Total Value $356,900



Addition Summary 
StoryTypeCodeArea
1.00 DECK (MAIN) MAIN 122
1.00 OPEN FRAME PORCH (MAIN) MAIN 160
1.00 DECK (MAIN) MAIN 240
1.00 CANOPY (LOWER) LOWE 140
1.00 UNFINISHED BASEMENT BSMT 292
1.00 PARTLY FINISHED BASEMENT BSMT 716
 
Other Improvements 
 


Building Sketch
Photograph
Building Sketch Building Photo
(Click sketch for bigger image)





Disclaimer:

This information has been collected for inventory of property per NCGS 105-317(a)(3) and is provided in order to enable property owners to ascertain the method, rules, and standards of value by which this property has been appraised. This information is compiled from recorded deeds, plats, and other public records data. Users of this information are hereby notified that the aforementioned sources should be consulted for verification of the information contained in this report. The county assumes no legal responsiblity.