HENDERSON COUNTY BANNER

Building Summary

Data last updated on: 3/25/2026     Ownership current as of: 3/18/2026     Tax Year: 2026
REID 802479

PIN # 9632-43-8279

Location Address Property Description
75 JAMES E DAVIS DR BOUNDARY SURVEY 0.45 ACRES PL:2022-14448
   
Property Owner Owner's Mailing Address
SHEEHAN, CAYLA;WILSON, JORDAN
75 JAMES E DAVIS DRIVE
MILLS RIVER NC 28759
Parcel
Buildings
Misc Improvements
Land
Deeds
Notes
Sales
Photos
Tax Bill
Map
Building Location Address
75 JAMES E DAVIS DR
Card   of  1
Building Details

Building Type SINGLE FAMILY
Building Use MA-SINGLE FAMILY
Units 0
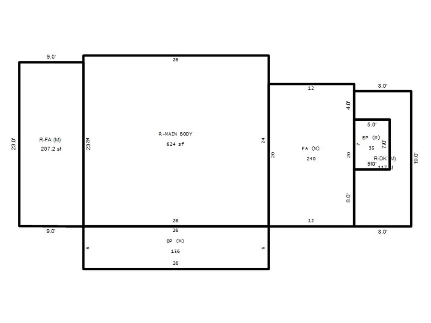
Living Area (SQFT) 1071
Number of Stories 1.00
Style CONVENTIONAL
Foundation CRAWL
Exterior ASB/WOOD SHINGLES
Const Type WJ
Heating NONE
Air Cond NO AIR CONDITIONING
Plumbing Baths (Full):   1
Baths (Half):   0
Extra Fixtures:   2
Total Plumbing Fixtures:   5 
Main Body (SQFT) 624
Building Description

Year Built 1954
Additions 5
Effective Year 1980
Remodeled 0
Interior Adj.
Other Features
Building Total & Improvement Details

Grade C 100%
Percentage Complete 100
Total Adjusted Replacement Cost New $211,901
Physical Depreciation (% Bad) 0%
Depreciated Value $120,784
Economic Depreciation (% Bad) 0%
Functional Depreciation (% Bad) 0%
Total Depreciated Value $120,784
Market Area Factor 1.00
Building Value $120,800
Misc Improvements Value $900
Total Improvement Value $121,700

Assessed Land Value $40,200
   
Assessed Total Value $161,900



Addition Summary 
StoryTypeCodeArea
1.00 OPEN FRAME PORCH (MAIN) MAIN 156
1.00 FRAME ADDITION (MAIN) MAIN 240
1.00 ENCLOSED FRAME PORCH (MAIN) MAIN 35
1.00 DECK (MAIN) MAIN 117
1.00 FRAME ADDITION (MAIN) MAIN 207
 
Other Improvements 
UnitsDescriptionItemCodeYear% BadValue
20x20 DIMENSIONS UTILITY BLDG-UNFINISHED 1960 80 900
 


Building Sketch
Photograph
Building Sketch Building Photo
(Click sketch for bigger image)





Disclaimer:

This information has been collected for inventory of property per NCGS 105-317(a)(3) and is provided in order to enable property owners to ascertain the method, rules, and standards of value by which this property has been appraised. This information is compiled from recorded deeds, plats, and other public records data. Users of this information are hereby notified that the aforementioned sources should be consulted for verification of the information contained in this report. The county assumes no legal responsiblity.