HENDERSON COUNTY BANNER

Building Summary

Data last updated on: 11/16/2025     Ownership current as of: 11/10/2025     Tax Year: 2025
REID 1001340

PIN # 9538-73-5279

Location Address Property Description
1344 BIG WILLOW RD SLD/5524 TR:1,4,5 PL:SLD-5524
   
Property Owner Owner's Mailing Address
LEE L. FEARS AND JEAN L. FEARS TRUST;FEARS, JEAN L. SOLE SUCCESSOR TRUSTEE
1344 BIG WILLOW RD
HENDERSONVILLE NC 28739
Parcel
Buildings
Misc Improvements
Land
Deeds
Notes
Sales
Photos
Tax Bill
Map
Building Location Address
1344 BIG WILLOW RD
Building Description
MA-SINGLE FAMILY
Card   of  1
Bldg Type SINGLE FAMILY
Units 0
Living Area (SQFT) 2450
Number of Stories 1.00
Style RANCH
Foundation CONCRETE BLOCK
Exterior VINYL
Const Type WJ
Heating HEAT PUMP
Air Cond 100% CENTRAL A/C
Plumbing Baths (Full):   3
Baths (Half):   0
Extra Fixtures:   2
Total Plumbing Fixtures:   11 
Bedrooms 0
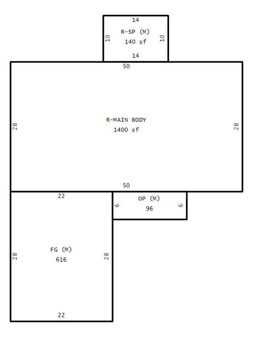
Main Body (SQFT) 1400
Year Built 2006
Additions 6
Effective Year 2006
Remodeled 0
Interior Adj.
Other Features
Building Total & Improvement Details

Grade C+ 110%
Percentage Complete 100
Total Adjusted Replacement Cost New $398,720
Physical Depreciation (% Bad) A 17%
Depreciated Value $330,938
Economic Depreciation (% Bad) 0
Functional Depreciation (% Bad) 0
Total Depreciated Value $330,938
Market Area Factor 1.00
Building Value $330,900
Misc Improvements Value $1,300
Total Improvement Value $332,200

Assessed Land Value $49,600
   
Assessed Total Value $381,800



Addition Summary 
StoryTypeCodeArea
1.00 OPEN FRAME PORCH (MAIN) MAIN 96
1.00 FRAME ATTACHED GARAGE (MAIN) MAIN 616
1.00 SCREENED PORCH (MAIN) MAIN 140
1.00 UNFINISHED BASEMENT BSMT 350
1.00 PARTLY FINISHED BASEMENT BSMT 1050
1.00 SCREENED PORCH (LOWER) LOWE 140
 
Other Improvements 
UnitsDescriptionItemCodeYear% BadValue
11X14 DIMENSIONS UTILITY BLDG-UNFINISHED 2010 34 1300
 


Building Sketch
Photograph
Building Sketch Building Photo
(Click sketch for bigger image)





Disclaimer:

This information has been collected for inventory of property per NCGS 105-317(a)(3) and is provided in order to enable property owners to ascertain the method, rules, and standards of value by which this property has been appraised. This information is compiled from recorded deeds, plats, and other public records data. Users of this information are hereby notified that the aforementioned sources should be consulted for verification of the information contained in this report. The county assumes no legal responsiblity.