HENDERSON COUNTY BANNER

Building Summary

Data last updated on: 3/25/2026     Ownership current as of: 3/18/2026     Tax Year: 2026
REID 9931462

PIN # 9538-78-5549

Location Address Property Description
2320 GOLF CLUB CT COVE WOODS AT CUMMINGS COVE LO:17 PL:A-207A
   
Property Owner Owner's Mailing Address
WASSERMAN, AMANDA B.;CARA, MICHAEL J.
2320 GOLF CLUB CT
HENDERSONVILLE NC 28739
Parcel
Buildings
Misc Improvements
Land
Deeds
Notes
Sales
Photos
Tax Bill
Map
Building Location Address
2320 GOLF CLUB CT
Card   of  1
Building Details

Building Type SINGLE FAMILY
Building Use MA-SINGLE FAMILY
Units 0
Living Area (SQFT) 2720
Number of Stories 1.00
Style CONTEMPORARY
Foundation CONCRETE BLOCK
Exterior WOOD SIDING
Const Type WJ
Heating FORCED AIR
Air Cond 100% CENTRAL A/C
Plumbing Baths (Full):   3
Baths (Half):   0
Extra Fixtures:   2
Total Plumbing Fixtures:   11 
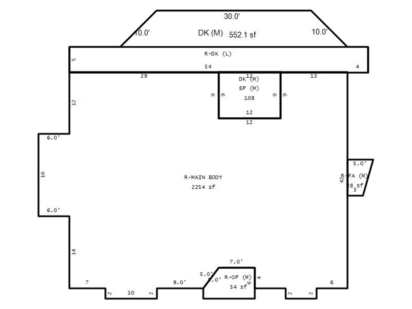
Main Body (SQFT) 2254
Building Description

Year Built 1987
Additions 8
Effective Year 1997
Remodeled 0
Interior Adj.
Other Features
Building Total & Improvement Details

Grade A- 145%
Percentage Complete 100
Total Adjusted Replacement Cost New $682,435
Physical Depreciation (% Bad) 0%
Depreciated Value $505,002
Economic Depreciation (% Bad) 0%
Functional Depreciation (% Bad) 0%
Total Depreciated Value $505,002
Market Area Factor 1.00
Building Value $505,000
Misc Improvements Value
Total Improvement Value $505,000

Assessed Land Value $41,600
   
Assessed Total Value $546,600



Addition Summary 
StoryTypeCodeArea
1.00 OPEN FRAME PORCH (MAIN) MAIN 54
1.00 DECK (MAIN) MAIN 552
1.00 DECK (LOWER) LOWE 290
1.00 DECK (MAIN) MAIN 108
1.00 ENCLOSED FRAME PORCH (MAIN) MAIN 108
1.00 FRAME ADDITION (MAIN) MAIN 28
1.00 UNFINISHED BASEMENT BSMT 1750
1.00 PARTLY FINISHED BASEMENT BSMT 438
 
Other Improvements 
 


Building Sketch
Photograph
Building Sketch Building Photo
(Click sketch for bigger image)





Disclaimer:

This information has been collected for inventory of property per NCGS 105-317(a)(3) and is provided in order to enable property owners to ascertain the method, rules, and standards of value by which this property has been appraised. This information is compiled from recorded deeds, plats, and other public records data. Users of this information are hereby notified that the aforementioned sources should be consulted for verification of the information contained in this report. The county assumes no legal responsiblity.