HENDERSON COUNTY BANNER

Building Summary

Data last updated on: 3/25/2026     Ownership current as of: 3/18/2026     Tax Year: 2026
REID 9937150

PIN # 9538-69-2072

Location Address Property Description
2440 W CUMMING WOODS LN COVE WOODS LO:36 PL:A-207
   
Property Owner Owner's Mailing Address
SCHULLSTROM, DIANE;LEDEKER, CARTER
2440 W CUMMING WOODS LN
HENDERSONVILLE NC 28739
Parcel
Buildings
Misc Improvements
Land
Deeds
Notes
Sales
Photos
Tax Bill
Map
Building Location Address
2440 W CUMMING WOODS LN
Card   of  1
Building Details

Building Type SINGLE FAMILY
Building Use MA-SINGLE FAMILY
Units 0
Living Area (SQFT) 2229
Number of Stories 1.00
Style RANCH
Foundation SLAB
Exterior WOOD SIDING
Const Type WJ
Heating FORCED AIR
Air Cond 100% CENTRAL A/C
Plumbing Baths (Full):   2
Baths (Half):   1
Extra Fixtures:   2
Total Plumbing Fixtures:   10 
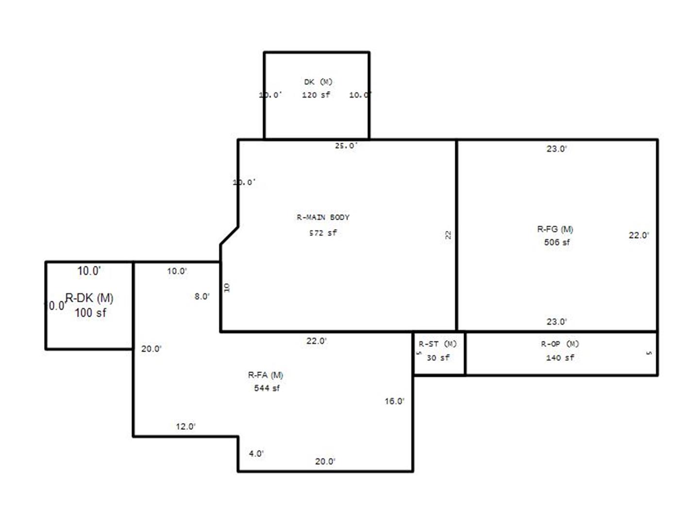
Main Body (SQFT) 572
Building Description

Year Built 1990
Additions 7
Effective Year 2015
Remodeled 0
Interior Adj.
Other Features
Building Total & Improvement Details

Grade B+ 135%
Percentage Complete 100
Total Adjusted Replacement Cost New $558,570
Physical Depreciation (% Bad) 0%
Depreciated Value $513,884
Economic Depreciation (% Bad) 0%
Functional Depreciation (% Bad) 0%
Total Depreciated Value $513,884
Market Area Factor 1.00
Building Value $513,900
Misc Improvements Value
Total Improvement Value $513,900

Assessed Land Value $53,600
   
Assessed Total Value $567,500



Addition Summary 
StoryTypeCodeArea
1.00 OPEN FRAME PORCH (MAIN) MAIN 140
1.00 STOOP (MAIN) MAIN 30
1.00 DECK (MAIN) MAIN 120
1.00 DECK (MAIN) MAIN 100
1.00 FRAME ADDITION (MAIN) MAIN 544
1.00 FRAME ATTACHED GARAGE (MAIN) MAIN 506
1.00 UPPER STORY STRY 1113
 
Other Improvements 
 


Building Sketch
Photograph
Building Sketch Building Photo
(Click sketch for bigger image)





Disclaimer:

This information has been collected for inventory of property per NCGS 105-317(a)(3) and is provided in order to enable property owners to ascertain the method, rules, and standards of value by which this property has been appraised. This information is compiled from recorded deeds, plats, and other public records data. Users of this information are hereby notified that the aforementioned sources should be consulted for verification of the information contained in this report. The county assumes no legal responsiblity.