HENDERSON COUNTY BANNER

Building Summary

Data last updated on: 3/25/2026     Ownership current as of: 3/18/2026     Tax Year: 2026
REID 9937161

PIN # 9538-78-6842

Location Address Property Description
2300 GOLF CLUB CT COVE WOODS LO:15 PL:A-207A
   
Property Owner Owner's Mailing Address
GIBSON, GEORGE R.;GIBSON, ELIZABETH C.
2300 GOLF CLUB CT
HENDERSONVILLE NC 28739
Parcel
Buildings
Misc Improvements
Land
Deeds
Notes
Sales
Photos
Tax Bill
Map
Building Location Address
2300 GOLF CLUB CT
Card   of  1
Building Details

Building Type SINGLE FAMILY
Building Use MA-SINGLE FAMILY
Units 0
Living Area (SQFT) 3147
Number of Stories 1.00
Style RANCH
Foundation CONCRETE BLOCK
Exterior MASONRY & FRAME
Const Type WJ
Heating FORCED AIR
Air Cond 100% CENTRAL A/C
Plumbing Baths (Full):   3
Baths (Half):   0
Extra Fixtures:   2
Total Plumbing Fixtures:   11 
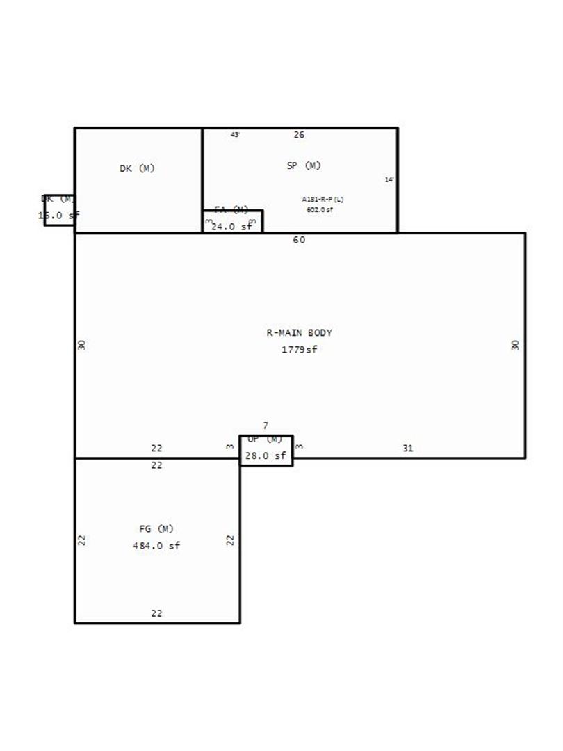
Main Body (SQFT) 1779
Building Description

Year Built 1997
Additions 9
Effective Year 2002
Remodeled 0
Interior Adj.
Other Features
Building Total & Improvement Details

Grade B- 120%
Percentage Complete 100
Total Adjusted Replacement Cost New $539,645
Physical Depreciation (% Bad) 0%
Depreciated Value $426,320
Economic Depreciation (% Bad) 0%
Functional Depreciation (% Bad) 0%
Total Depreciated Value $426,320
Market Area Factor 1.00
Building Value $426,300
Misc Improvements Value
Total Improvement Value $426,300

Assessed Land Value $41,200
   
Assessed Total Value $467,500



Addition Summary 
StoryTypeCodeArea
1.00 OPEN FRAME PORCH (MAIN) MAIN 28
1.00 FRAME ATTACHED GARAGE (MAIN) MAIN 484
1.00 DECK (MAIN) MAIN 16
1.00 DECK (MAIN) MAIN 238
1.00 SCREENED PORCH (MAIN) MAIN 340
1.00 FRAME ADDITION (MAIN) MAIN 24
1.00 PATIO (LOWER) LOWE 602
1.00 UNFINISHED BASEMENT BSMT 435
1.00 PARTLY FINISHED BASEMENT BSMT 1344
 
Other Improvements 
 


Building Sketch
Photograph
Building Sketch Building Photo
(Click sketch for bigger image)





Disclaimer:

This information has been collected for inventory of property per NCGS 105-317(a)(3) and is provided in order to enable property owners to ascertain the method, rules, and standards of value by which this property has been appraised. This information is compiled from recorded deeds, plats, and other public records data. Users of this information are hereby notified that the aforementioned sources should be consulted for verification of the information contained in this report. The county assumes no legal responsiblity.