HENDERSON COUNTY BANNER

Building Summary

Data last updated on: 3/25/2026     Ownership current as of: 3/18/2026     Tax Year: 2026
REID 9945335

PIN # 9566-87-5838

Location Address Property Description
230 MAPLE HILL DR KENMURE LO:37 PH:III PL:1990-1065
   
Property Owner Owner's Mailing Address
SUNDAL, SCOTT CHARLES;SUNDAL, REBECCA
230 MAPLE HILL DR
FLAT ROCK NC 28731
Parcel
Buildings
Misc Improvements
Land
Deeds
Notes
Sales
Photos
Tax Bill
Map
Building Location Address
230 MAPLE HILL DR
Card   of  1
Building Details

Building Type SINGLE FAMILY
Building Use MA-SINGLE FAMILY
Units 0
Living Area (SQFT) 3699
Number of Stories 1.00
Style RANCH
Foundation CONCRETE BLOCK
Exterior WOOD SIDING
Const Type WJ
Heating HEAT PUMP
Air Cond 100% CENTRAL A/C
Plumbing Baths (Full):   2
Baths (Half):   1
Extra Fixtures:   2
Total Plumbing Fixtures:   10 
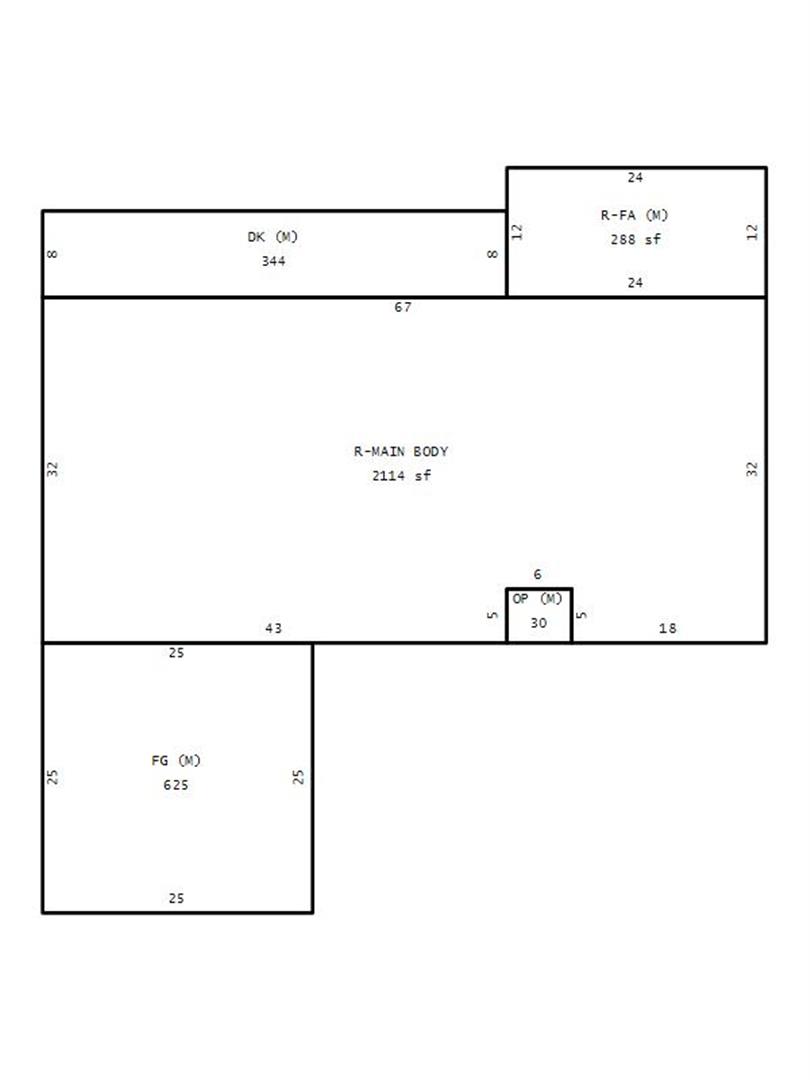
Main Body (SQFT) 2114
Building Description

Year Built 1992
Additions 6
Effective Year 2012
Remodeled 0
Interior Adj.
Other Features
Building Total & Improvement Details

Grade A 155%
Percentage Complete 100
Total Adjusted Replacement Cost New $809,975
Physical Depreciation (% Bad) 0%
Depreciated Value $720,878
Economic Depreciation (% Bad) 0%
Functional Depreciation (% Bad) 0%
Total Depreciated Value $720,878
Market Area Factor 1.00
Building Value $720,900
Misc Improvements Value
Total Improvement Value $720,900

Assessed Land Value $108,900
   
Assessed Total Value $829,800



Addition Summary 
StoryTypeCodeArea
1.00 OPEN FRAME PORCH (MAIN) MAIN 30
1.00 FRAME ATTACHED GARAGE (MAIN) MAIN 625
1.00 DECK (MAIN) MAIN 344
1.00 FRAME ADDITION (MAIN) MAIN 288
1.00 FULLY FINISHED BASEMENT BSMT 1297
1.00 UNFINISHED BASEMENT BSMT 905
 
Other Improvements 
 


Building Sketch
Photograph
Building Sketch Building Photo
(Click sketch for bigger image)





Disclaimer:

This information has been collected for inventory of property per NCGS 105-317(a)(3) and is provided in order to enable property owners to ascertain the method, rules, and standards of value by which this property has been appraised. This information is compiled from recorded deeds, plats, and other public records data. Users of this information are hereby notified that the aforementioned sources should be consulted for verification of the information contained in this report. The county assumes no legal responsiblity.