HENDERSON COUNTY BANNER

Building Summary

Data last updated on: 3/25/2026     Ownership current as of: 3/18/2026     Tax Year: 2026
REID 9947392

PIN # 9566-83-4559

Location Address Property Description
106 WOODGLEN CT KENMURE LO:30 PH:IV SE:G PL:1992-1372
   
Property Owner Owner's Mailing Address
MIDDLETON, BOBBY LEE JR.;MIDDLETON, BRENDA LORRAINE
106 WOODGLEN CT
FLAT ROCK NC 28731
Parcel
Buildings
Misc Improvements
Land
Deeds
Notes
Sales
Photos
Tax Bill
Map
Building Location Address
106 WOODGLEN CT
Card   of  1
Building Details

Building Type SINGLE FAMILY
Building Use MA-SINGLE FAMILY
Units 0
Living Area (SQFT) 5078
Number of Stories 1.00
Style CONVENTIONAL
Foundation CONCRETE BLOCK
Exterior MASONRY & FRAME
Const Type WJ
Heating HEAT PUMP
Air Cond 100% CENTRAL A/C
Plumbing Baths (Full):   3
Baths (Half):   1
Extra Fixtures:   2
Total Plumbing Fixtures:   13 
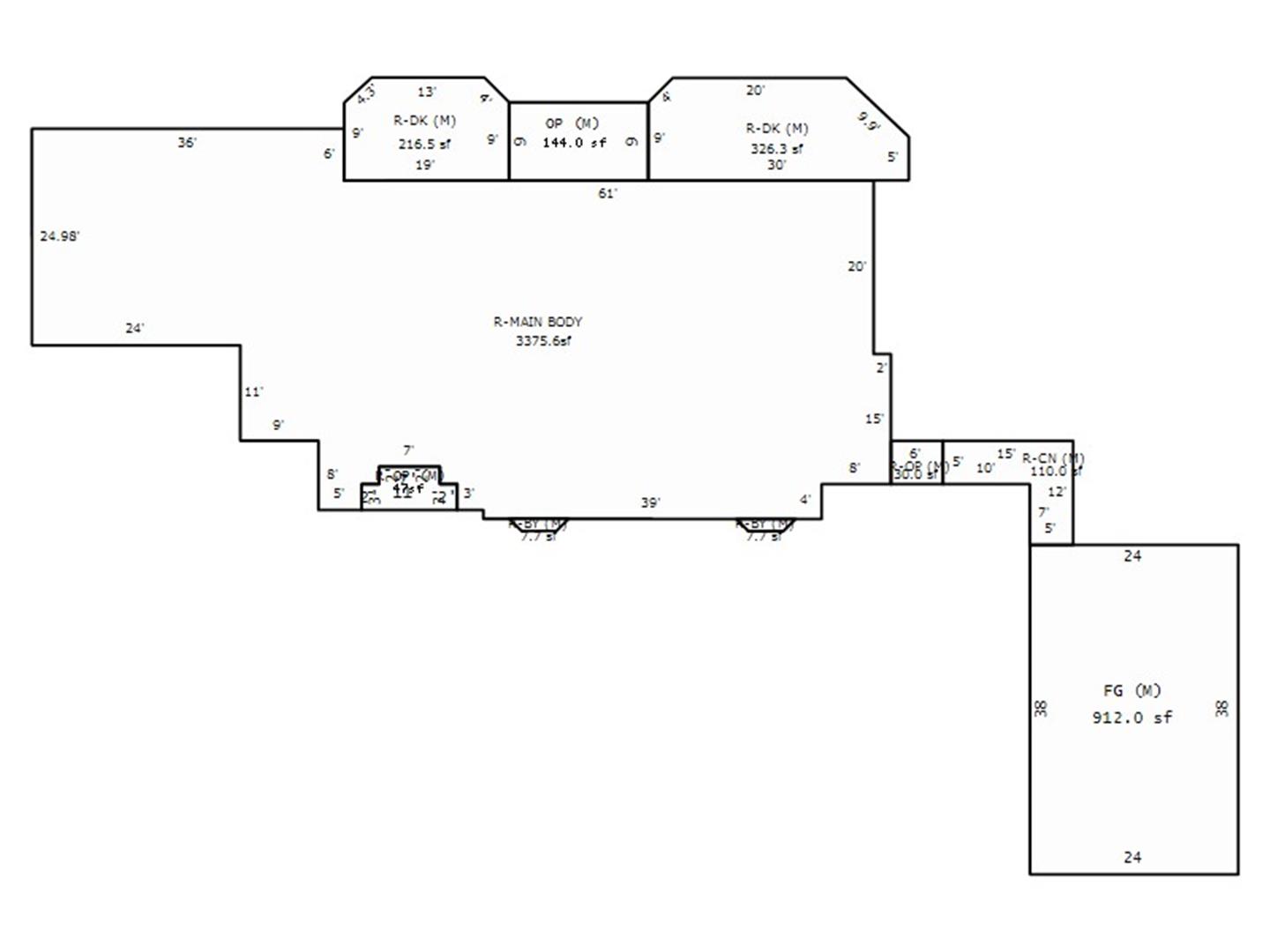
Main Body (SQFT) 3376
Building Description

Year Built 1997
Additions 14
Effective Year 2002
Remodeled 0
Interior Adj.
Other Features
Building Total & Improvement Details

Grade AA- 200%
Percentage Complete 100
Total Adjusted Replacement Cost New $1,487,094
Physical Depreciation (% Bad) 0%
Depreciated Value $1,174,804
Economic Depreciation (% Bad) 0%
Functional Depreciation (% Bad) 0%
Total Depreciated Value $1,174,804
Market Area Factor 1.00
Building Value $1,174,800
Misc Improvements Value
Total Improvement Value $1,174,800

Assessed Land Value $167,700
   
Assessed Total Value $1,342,500



Addition Summary 
StoryTypeCodeArea
1.00 FRAME ATTACHED GARAGE (MAIN) MAIN 912
1.00 OPEN FRAME PORCH (MAIN) MAIN 47
1.00 OPEN FRAME PORCH (MAIN) MAIN 144
1.00 DECK (MAIN) MAIN 216
1.00 DECK (MAIN) MAIN 326
1.00 OPEN FRAME PORCH (MAIN) MAIN 30
1.00 CANOPY (MAIN) MAIN 110
1.00 BAY WINDOW (MAIN) MAIN 8
1.00 BAY WINDOW (MAIN) MAIN 8
1.00 PATIO (LOWER) LOWE 190
1.00 OPEN FRAME PORCH (LOWER) LOWE 144
1.00 PATIO (LOWER) LOWE 312
1.00 UNFINISHED BASEMENT BSMT 1679
1.00 PARTLY FINISHED BASEMENT BSMT 1702
 
Other Improvements 
 


Building Sketch
Photograph
Building Sketch Building Photo
(Click sketch for bigger image)





Disclaimer:

This information has been collected for inventory of property per NCGS 105-317(a)(3) and is provided in order to enable property owners to ascertain the method, rules, and standards of value by which this property has been appraised. This information is compiled from recorded deeds, plats, and other public records data. Users of this information are hereby notified that the aforementioned sources should be consulted for verification of the information contained in this report. The county assumes no legal responsiblity.