HENDERSON COUNTY BANNER

Building Summary

Data last updated on: 3/25/2026     Ownership current as of: 3/18/2026     Tax Year: 2026
REID 9959670

PIN # 9589-77-7033

Location Address Property Description
29 CATHY CT WILKIE PROP LO:3 PL:1997-2428
   
Property Owner Owner's Mailing Address
WANTOCH, JARED;WANTOCH, JENNIFER
29 CATHY CT
HENDERSONVILLE NC 28792
Parcel
Buildings
Misc Improvements
Land
Deeds
Notes
Sales
Photos
Tax Bill
Map
Building Location Address
29 CATHY CT
Card   of  1
Building Details

Building Type SINGLE FAMILY
Building Use MA-SINGLE FAMILY
Units 0
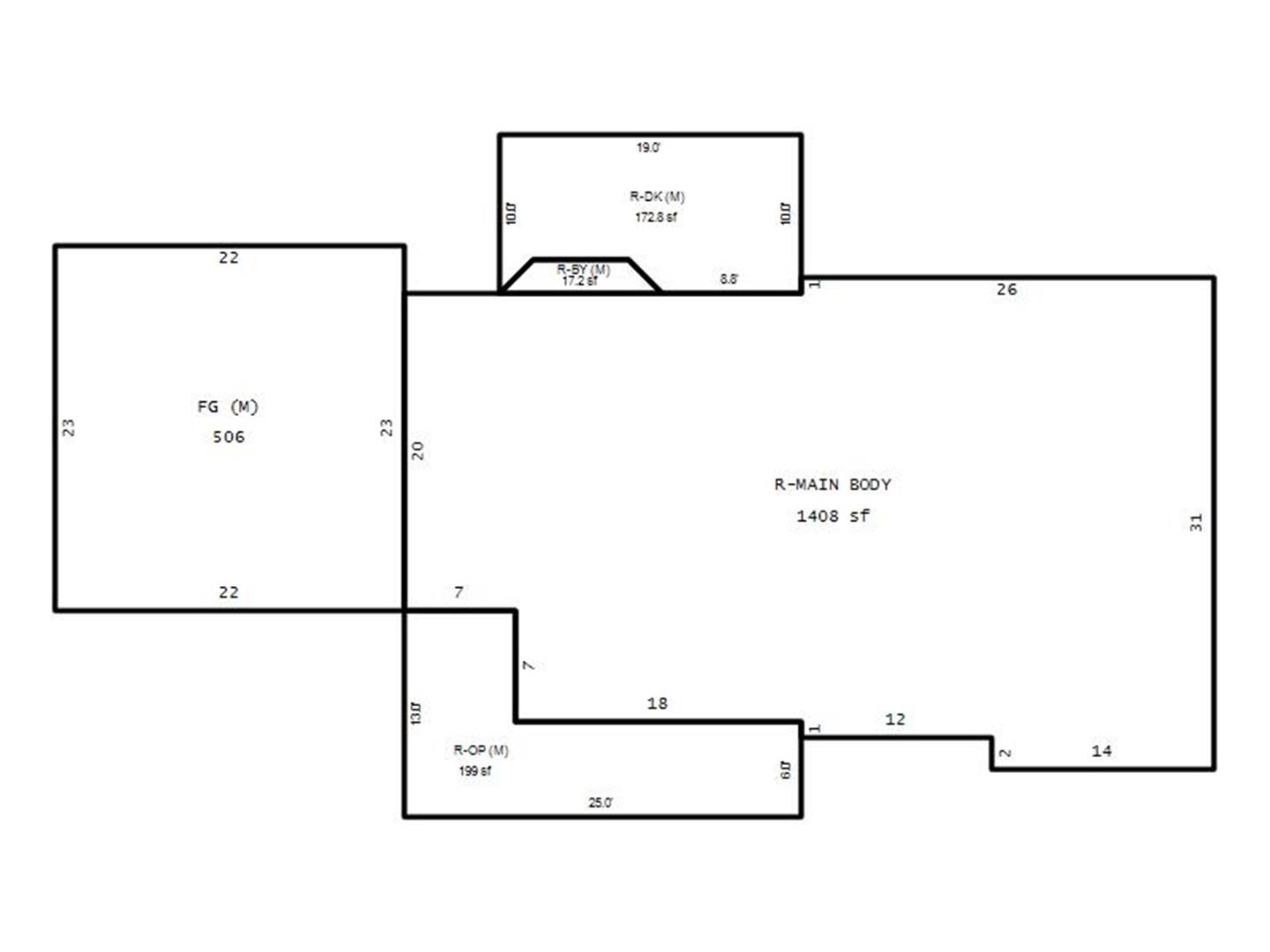
Living Area (SQFT) 1408
Number of Stories 1.00
Style RANCH
Foundation CRAWL
Exterior VINYL
Const Type WJ
Heating HEAT PUMP
Air Cond 100% CENTRAL A/C
Plumbing Baths (Full):   2
Baths (Half):   0
Extra Fixtures:   2
Total Plumbing Fixtures:   8 
Main Body (SQFT) 1408
Building Description

Year Built 1999
Additions 4
Effective Year 2012
Remodeled 0
Interior Adj.
Other Features
Building Total & Improvement Details

Grade C+ 110%
Percentage Complete 100
Total Adjusted Replacement Cost New $311,203
Physical Depreciation (% Bad) 0%
Depreciated Value $276,971
Economic Depreciation (% Bad) 0%
Functional Depreciation (% Bad) 0%
Total Depreciated Value $276,971
Market Area Factor 1.00
Building Value $277,000
Misc Improvements Value $600
Total Improvement Value $277,600

Assessed Land Value $32,200
   
Assessed Total Value $309,800



Addition Summary 
StoryTypeCodeArea
1.00 FRAME ATTACHED GARAGE (MAIN) MAIN 506
1.00 OPEN FRAME PORCH (MAIN) MAIN 199
1.00 DECK (MAIN) MAIN 173
1.00 BAY WINDOW (MAIN) MAIN 17
 
Other Improvements 
UnitsDescriptionItemCodeYear% BadValue
10x12 DIMENSIONS UTILITY BLDG-UNFINISHED 2002 59 600
 


Building Sketch
Photograph
Building Sketch Building Photo
(Click sketch for bigger image)





Disclaimer:

This information has been collected for inventory of property per NCGS 105-317(a)(3) and is provided in order to enable property owners to ascertain the method, rules, and standards of value by which this property has been appraised. This information is compiled from recorded deeds, plats, and other public records data. Users of this information are hereby notified that the aforementioned sources should be consulted for verification of the information contained in this report. The county assumes no legal responsiblity.