HENDERSON COUNTY BANNER

Building Summary

Data last updated on: 3/25/2026     Ownership current as of: 3/18/2026     Tax Year: 2026
REID 9962359

PIN # 9538-68-1725

Location Address Property Description
3081 GOLFSIDE LN COVE WOODS| LO:38R PL:1998-2825
   
Property Owner Owner's Mailing Address
DUANE AND PATRICIA SPYER LIVING TRUST;SPYER, DUANE T TRUSTEE;SPYER, PATRICIA J TRUSTEE
3081 GOLFSIDE LN
HENDERSONVILLE NC 28739
Parcel
Buildings
Misc Improvements
Land
Deeds
Notes
Sales
Photos
Tax Bill
Map
Building Location Address
3081 GOLFSIDE LN
Card   of  1
Building Details

Building Type SINGLE FAMILY
Building Use MA-SINGLE FAMILY
Units 0
Living Area (SQFT) 3383
Number of Stories 1.60
Style CONVENTIONAL
Foundation CONCRETE BLOCK
Exterior HARDY PLANK SIDING
Const Type WJ
Heating FORCED AIR
Air Cond 100% CENTRAL A/C
Plumbing Baths (Full):   3
Baths (Half):   0
Extra Fixtures:   5
Total Plumbing Fixtures:   14 
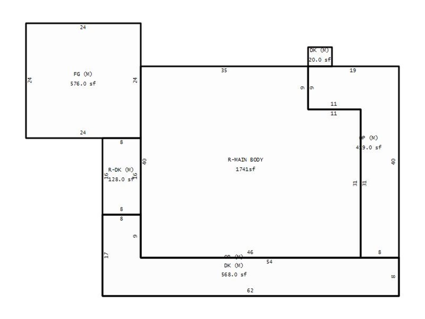
Main Body (SQFT) 1741
Building Description

Year Built 2001
Additions 9
Effective Year 2002
Remodeled 0
Interior Adj.
Other Features
Building Total & Improvement Details

Grade B- 120%
Percentage Complete 100
Total Adjusted Replacement Cost New $664,581
Physical Depreciation (% Bad) 0%
Depreciated Value $525,019
Economic Depreciation (% Bad) 0%
Functional Depreciation (% Bad) 0%
Total Depreciated Value $525,019
Market Area Factor 1.00
Building Value $525,000
Misc Improvements Value
Total Improvement Value $525,000

Assessed Land Value $69,000
   
Assessed Total Value $594,000



Addition Summary 
StoryTypeCodeArea
1.00 OPEN FRAME PORCH (MAIN) MAIN 568
1.00 DECK (MAIN) MAIN 568
1.00 DECK (MAIN) MAIN 128
1.00 FRAME ATTACHED GARAGE (MAIN) MAIN 576
1.00 DECK (MAIN) MAIN 20
1.00 OPEN FRAME PORCH (MAIN) MAIN 419
1.00 UNFINISHED BASEMENT BSMT 947
1.00 PARTLY FINISHED BASEMENT BSMT 647
1.00 UPPER STORY STRY 995
 
Other Improvements 
 


Building Sketch
Photograph
Building Sketch Building Photo
(Click sketch for bigger image)





Disclaimer:

This information has been collected for inventory of property per NCGS 105-317(a)(3) and is provided in order to enable property owners to ascertain the method, rules, and standards of value by which this property has been appraised. This information is compiled from recorded deeds, plats, and other public records data. Users of this information are hereby notified that the aforementioned sources should be consulted for verification of the information contained in this report. The county assumes no legal responsiblity.