HENDERSON COUNTY BANNER

Building Summary

Data last updated on: 3/25/2026     Ownership current as of: 3/18/2026     Tax Year: 2026
REID 9962571

PIN # 9538-88-3308

Location Address Property Description
3527 CUMMINGS COVE PKWY #13 CUMMINGS COVE PH 2 SEC 1 PH:2 SE:1 PL:1998-2880A
   
Property Owner Owner's Mailing Address
HERD, MICHAEL T.;HERD, MARY ELIZABETH T.
3527 CUMMINGS COVE PKWY
HENDERSONVILLE NC 28739
Parcel
Buildings
Misc Improvements
Land
Deeds
Notes
Sales
Photos
Tax Bill
Map
Building Location Address
3527 CUMMINGS COVE PKWY
Card   of  1
Building Details

Building Type SINGLE FAMILY
Building Use MA-SINGLE FAMILY
Units 0
Living Area (SQFT) 4721
Number of Stories 1.00
Style CONVENTIONAL
Foundation CONCRETE BLOCK
Exterior HARDY PLANK SIDING
Const Type WJ
Heating FORCED AIR
Air Cond 100% CENTRAL A/C
Plumbing Baths (Full):   4
Baths (Half):   2
Extra Fixtures:   2
Total Plumbing Fixtures:   18 
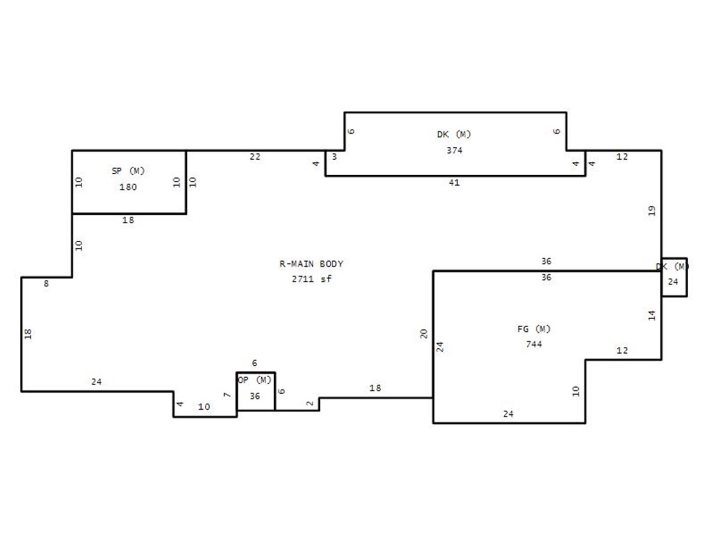
Main Body (SQFT) 2711
Building Description

Year Built 2007
Additions 8
Effective Year 2007
Remodeled 0
Interior Adj.
Other Features
Building Total & Improvement Details

Grade A 155%
Percentage Complete 100
Total Adjusted Replacement Cost New $984,249
Physical Depreciation (% Bad) 0%
Depreciated Value $826,769
Economic Depreciation (% Bad) 0%
Functional Depreciation (% Bad) 0%
Total Depreciated Value $826,769
Market Area Factor 1.00
Building Value $826,800
Misc Improvements Value
Total Improvement Value $826,800

Assessed Land Value $110,800
   
Assessed Total Value $937,600



Addition Summary 
StoryTypeCodeArea
1.00 OPEN FRAME PORCH (MAIN) MAIN 36
1.00 FRAME ATTACHED GARAGE (MAIN) MAIN 744
1.00 DECK (MAIN) MAIN 374
1.00 SCREENED PORCH (MAIN) MAIN 180
1.00 DECK (MAIN) MAIN 24
1.00 OPEN FRAME PORCH (LOWER) LOWE 374
1.00 OPEN FRAME PORCH (LOWER) LOWE 180
1.00 FULLY FINISHED BASEMENT BSMT 2010
 
Other Improvements 
 


Building Sketch
Photograph
Building Sketch Building Photo
(Click sketch for bigger image)





Disclaimer:

This information has been collected for inventory of property per NCGS 105-317(a)(3) and is provided in order to enable property owners to ascertain the method, rules, and standards of value by which this property has been appraised. This information is compiled from recorded deeds, plats, and other public records data. Users of this information are hereby notified that the aforementioned sources should be consulted for verification of the information contained in this report. The county assumes no legal responsiblity.