HENDERSON COUNTY BANNER

Building Summary

Data last updated on: 3/25/2026     Ownership current as of: 3/18/2026     Tax Year: 2026
REID 9969655

PIN # 9599-35-7220

Location Address Property Description
687 RIDGE RD BOUNDARY SURVEY 1.02 ACRES PL:2025-16058
   
Property Owner Owner's Mailing Address
SUTTON, EMILY HEYWARD;SUTTON, JOSHUA;CART, ALFRED R.
687 RIDGE RD
HENDERSONVILLE NC 28792
Parcel
Buildings
Misc Improvements
Land
Deeds
Notes
Sales
Photos
Tax Bill
Map
Building Location Address
687 RIDGE RD
Card   of  1
Building Details

Building Type SINGLE FAMILY
Building Use MA-SINGLE FAMILY
Units 0
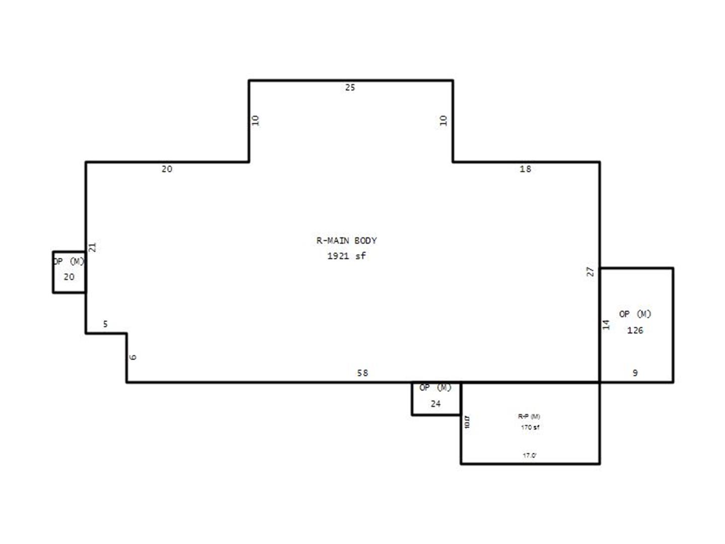
Living Area (SQFT) 1921
Number of Stories 1.00
Style RANCH
Foundation MASONRY
Exterior BRICK
Const Type WJ
Heating HEAT PUMP
Air Cond 100% CENTRAL A/C
Plumbing Baths (Full):   2
Baths (Half):   0
Extra Fixtures:   2
Total Plumbing Fixtures:   8 
Main Body (SQFT) 1921
Building Description

Year Built 1950
Additions 5
Effective Year 2000
Remodeled 0
Interior Adj.
Other Features
Building Total & Improvement Details

Grade C 100%
Percentage Complete 100
Total Adjusted Replacement Cost New $392,699
Physical Depreciation (% Bad) 0%
Depreciated Value $302,378
Economic Depreciation (% Bad) 0%
Functional Depreciation (% Bad) 0%
Total Depreciated Value $302,378
Market Area Factor 1.00
Building Value $302,400
Misc Improvements Value $6,100
Total Improvement Value $308,500

Assessed Land Value $43,600
   
Assessed Total Value $352,100



Addition Summary 
StoryTypeCodeArea
1.00 OPEN FRAME PORCH (MAIN) MAIN 24
1.00 OPEN FRAME PORCH (MAIN) MAIN 20
1.00 OPEN FRAME PORCH (MAIN) MAIN 126
1.00 PATIO (MAIN) MAIN 170
1.00 UNFINISHED BASEMENT BSMT 1921
 
Other Improvements 
UnitsDescriptionItemCodeYear% BadValue
26x28 DIMENSIONS DETACHED GARAGE 1950 80 6100
 


Building Sketch
Photograph
Building Sketch Building Photo
(Click sketch for bigger image)





Disclaimer:

This information has been collected for inventory of property per NCGS 105-317(a)(3) and is provided in order to enable property owners to ascertain the method, rules, and standards of value by which this property has been appraised. This information is compiled from recorded deeds, plats, and other public records data. Users of this information are hereby notified that the aforementioned sources should be consulted for verification of the information contained in this report. The county assumes no legal responsiblity.