HENDERSON COUNTY BANNER

Building Summary

Data last updated on: 3/25/2026     Ownership current as of: 3/18/2026     Tax Year: 2026
REID 9972998

PIN # 9569-06-3178

Location Address Property Description
240 NORLEON AVE MINOR SUBDIVISION LO:.41AC PL:2003-4617
   
Property Owner Owner's Mailing Address
HALL, CHARLES;KLEINFELTER, CALISTA
106 MCELRATH RD
ARDEN NC 28704
Parcel
Buildings
Misc Improvements
Land
Deeds
Notes
Sales
Photos
Tax Bill
Map
Building Location Address
240 NORLEON AVE
Card   of  1
Building Details

Building Type SINGLE FAMILY
Building Use MA-SINGLE FAMILY
Units 0
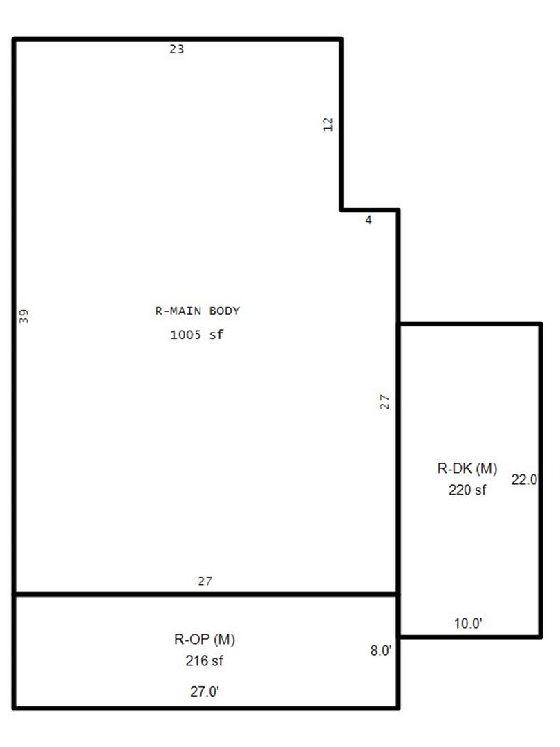
Living Area (SQFT) 1005
Number of Stories 1.00
Style CONVENTIONAL
Foundation CRAWL
Exterior MASONRY & FRAME
Const Type WJ
Heating HEAT PUMP
Air Cond 100% CENTRAL A/C
Plumbing Baths (Full):   1
Baths (Half):   0
Extra Fixtures:   2
Total Plumbing Fixtures:   5 
Main Body (SQFT) 1005
Building Description

Year Built 1954
Additions 2
Effective Year 2000
Remodeled 0
Interior Adj.
Other Features
Building Total & Improvement Details

Grade C 100%
Percentage Complete 100
Total Adjusted Replacement Cost New $214,220
Physical Depreciation (% Bad) 0%
Depreciated Value $164,949
Economic Depreciation (% Bad) 0%
Functional Depreciation (% Bad) 0%
Total Depreciated Value $164,949
Market Area Factor 1.00
Building Value $164,900
Misc Improvements Value $300
Total Improvement Value $165,200

Assessed Land Value $64,800
   
Assessed Total Value $230,000



Addition Summary 
StoryTypeCodeArea
1.00 OPEN FRAME PORCH (MAIN) MAIN 216
1.00 DECK (MAIN) MAIN 220
 
Other Improvements 
UnitsDescriptionItemCodeYear% BadValue
10x12 DIMENSIONS UTILITY BLDG-UNFINISHED 1982 80 300
 


Building Sketch
Photograph
Building Sketch Building Photo
(Click sketch for bigger image)





Disclaimer:

This information has been collected for inventory of property per NCGS 105-317(a)(3) and is provided in order to enable property owners to ascertain the method, rules, and standards of value by which this property has been appraised. This information is compiled from recorded deeds, plats, and other public records data. Users of this information are hereby notified that the aforementioned sources should be consulted for verification of the information contained in this report. The county assumes no legal responsiblity.