Building Summary

Data last updated on: 3/25/2026     Ownership current as of: 3/23/2026     Tax Year: 2026
REID 25025

PIN # 4688-03-9105

Location Address Property Description
101 VANCE ST M H WHITE LO:18
   
Property Owner Owner's Mailing Address
BASNIGHT, KELVIN
101 VANCE ST
GREENVILLE NC 27834
Parcel
Buildings
Misc Improvements
Land
Deeds
Notes
Sales
Photos
Tax Bill
Map
Building Location Address
101 VANCE ST
Card   of  1
Building Details

Building Type 01-SFR-CONST
Building Use 01-SFR
Units 1
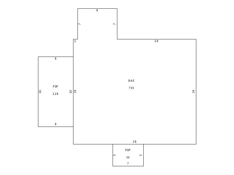
Living Area (SQFT) 735
Number of Stories 1.00
Style 1.0-Story
Foundation PIERS
Exterior Alum/Vinyl-Sid
Const Type Gable
Heating FORCED-AIR-DUCTED
Air Cond CENTRAL
Plumbing Baths (Full):   1
Baths (Half):   0
Extra Fixtures:   0
Total Plumbing Fixtures:   3 
Bedrooms 2
Main Body (SQFT) 735
Building Description

Year Built 1945
Additions 2
Effective Year 1995
Remodeled 0
Interior Adj.
Other Features
Building Total & Improvement Details

Grade C 100%
Percentage Complete 100
Total Adjusted Replacement Cost New $120,823
Physical Depreciation (% Bad) 0%
Depreciated Value $85,784
Economic Depreciation (% Bad) 0%
Functional Depreciation (% Bad) 0%
Total Depreciated Value $85,784
Market Area Factor 1.00
Building Value $85,784
Misc Improvements Value $1,670
Total Improvement Value $87,454

Assessed Land Value $11,000
   
Assessed Total Value $98,454



Addition Summary 
StoryTypeCodeArea
1.00 FINISHED SCREEN PORCH FSP 128
1.00 FINISHED OPEN PORCH FOP 35
 
Other Improvements 
UnitsDescriptionItemCodeYear% BadValue
8x10 DIMENSIONS STORAGE/SHOP AVERAGE 2009 40 1670
 


Building Sketch
Photograph
Building Sketch Building Photo
(Click sketch for bigger image)