Building Summary

Data last updated on: 3/25/2026     Ownership current as of: 3/23/2026     Tax Year: 2026
REID 6728

PIN # 4688-12-5174

Location Address Property Description
510 W FOURTH ST GLENN-PENDER-MOORE HOUSE
   
Property Owner Owner's Mailing Address
JBA GROWTH PARTNERS LLC
1708 E ARLINGTON BLVD
GREENVILLE NC 27858
Parcel
Buildings
Misc Improvements
Land
Deeds
Notes
Sales
Photos
Tax Bill
Map
Building Location Address
510 W FOURTH ST
Card   of  1
Building Details

Building Type 01-SFR-CONST
Building Use 01-SFR
Units 1
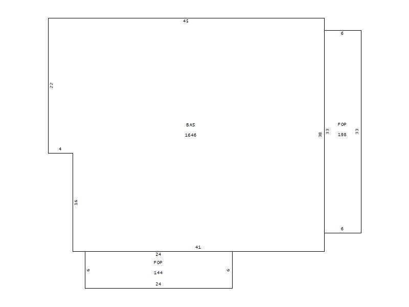
Living Area (SQFT) 2798
Number of Stories 1.70
Style 2.0-Story
Foundation CONTFOOT
Exterior WD-ON-SHEATHING
Const Type Gable
Heating FORCED-AIR-DUCTED
Air Cond CENTRAL
Plumbing Baths (Full):   3
Baths (Half):   0
Extra Fixtures:   0
Total Plumbing Fixtures:   9 
Bedrooms 5
Main Body (SQFT) 1646
Building Description

Year Built 1880
Additions 3
Effective Year 1995
Remodeled 0
Interior Adj.
Other Features
Building Total & Improvement Details

Grade C 100%
Percentage Complete 100
Total Adjusted Replacement Cost New $343,695
Physical Depreciation (% Bad) 0%
Depreciated Value $244,023
Economic Depreciation (% Bad) 0%
Functional Depreciation (% Bad) 0%
Total Depreciated Value $244,023
Market Area Factor 1.00
Building Value $244,023
Misc Improvements Value
Total Improvement Value $244,023

Assessed Land Value $22,000
   
Assessed Total Value $133,012



Addition Summary 
StoryTypeCodeArea
1.00 FINISHED OPEN PORCH FOP 144
1.00 FINISHED OPEN PORCH FOP 198
1.00 FINISHED UPPER STORY FUS 1152
 
Other Improvements 
 


Building Sketch
Photograph
Building Sketch Building Photo
(Click sketch for bigger image)