Building Summary

Data last updated on: 3/25/2026     Ownership current as of: 3/23/2026     Tax Year: 2026
REID 7182

PIN # 4688-03-9342

Location Address Property Description
13 VANCE ST M H WHITE LO:15
   
Property Owner Owner's Mailing Address
RAMIREZ, RUDDY ALEJANDRO PINEDA;JIMENEZ, ERIKA RUFIM VELASQUEZ
13 VANCE ST
GREENVILLE NC 27834
Parcel
Buildings
Misc Improvements
Land
Deeds
Notes
Sales
Photos
Tax Bill
Map
Building Location Address
13 VANCE ST
Card   of  1
Building Details

Building Type 01-SFR-CONST
Building Use 01-SFR
Units 1
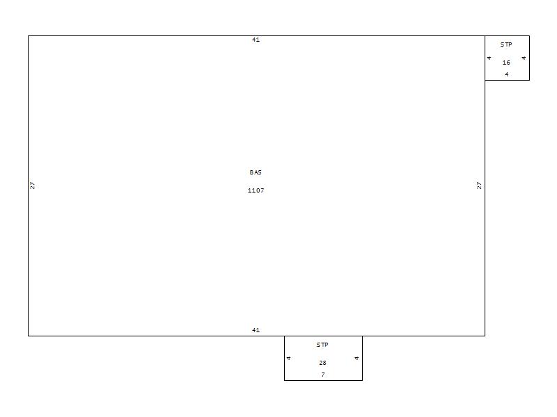
Living Area (SQFT) 1107
Number of Stories 1.00
Style 1.0-Story
Foundation CONTFOOT
Exterior FACE-BRK
Const Type Gable
Heating FORCED-AIR-DUCTED
Air Cond CENTRAL
Plumbing Baths (Full):   1
Baths (Half):   1
Extra Fixtures:   0
Total Plumbing Fixtures:   5 
Bedrooms 3
Main Body (SQFT) 1107
Building Description

Year Built 1972
Additions 2
Effective Year 1985
Remodeled 0
Interior Adj.
Other Features
Building Total & Improvement Details

Grade C 100%
Percentage Complete 100
Total Adjusted Replacement Cost New $172,462
Physical Depreciation (% Bad) 0%
Depreciated Value $94,854
Economic Depreciation (% Bad) 0%
Functional Depreciation (% Bad) 0%
Total Depreciated Value $94,854
Market Area Factor 1.00
Building Value $94,854
Misc Improvements Value
Total Improvement Value $94,854

Assessed Land Value $11,000
   
Assessed Total Value $105,854



Addition Summary 
StoryTypeCodeArea
1.00 STOOP STP 28
1.00 STOOP STP 16
 
Other Improvements 
 


Building Sketch
Photograph
Building Sketch Building Photo
(Click sketch for bigger image)