Building Summary

Data last updated on: 1/31/2026     Ownership current as of: 1/29/2026     Tax Year: 2026
REID 1206949

PIN # 1610-50-2901

Location Address Property Description
187 WEST VIEW ST
   
Property Owner Owner's Mailing Address
LESLIE, NORMA H
187 WESTVIEW ST
RUTHERFORDTON NC 28139
Parcel
Buildings
Misc Improvements
Land
Deeds
Notes
Sales
Photos
Map
Building Location Address
187 WEST VIEW ST
Card   of  1
Building Details

Building Type RESIDENTIAL
Building Use 37
Units 0
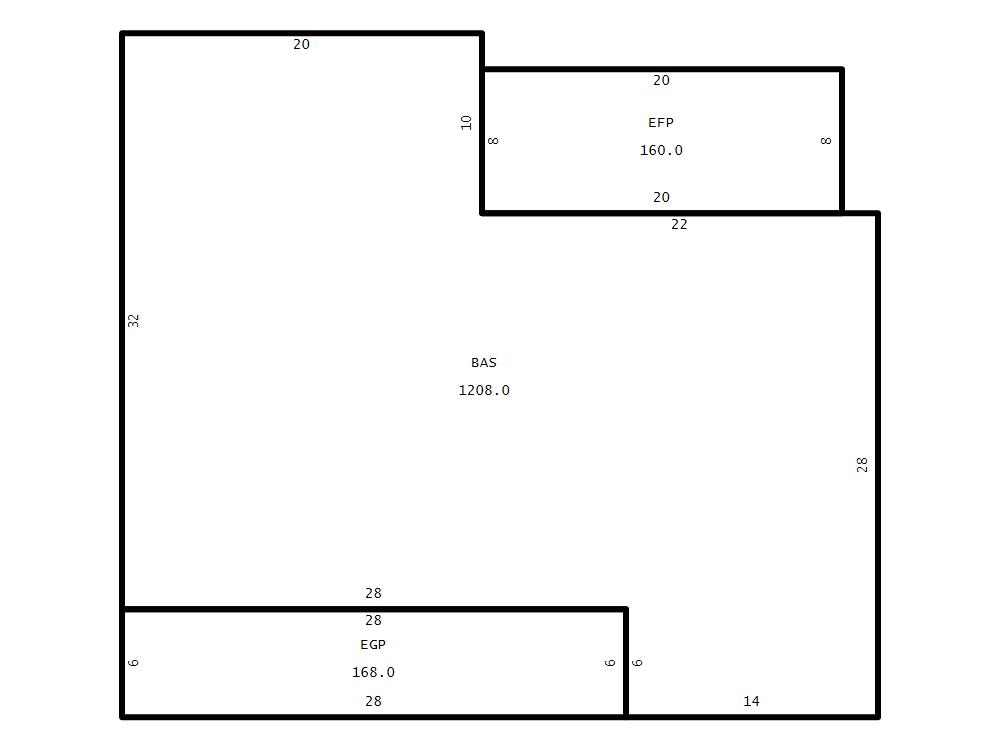
Living Area (SQFT) 1208
Number of Stories 1.00
Style 1 STORY
Foundation BLOCK/BRICK
Frame WOOD FRAME
Exterior SIDING
Const Type WOODF
Heating HEAT PUMP
Air Cond HEAT PUMP
Plumbing Baths (Full):   2
Baths (Half):   0
Extra Fixtures:   2
Total Plumbing Fixtures:   8 
Bedrooms 2
Floor LUXURY VINYL PLANK
Subfloor WOOD FRAME
Roof Cover ASPHALT/FIBERGLASS
Roof Type GABLE
Lighting INCANDESCENT
Main Body (SQFT) 1208
Building Description

Year Built 1933
Additions 2
Effective Year 1985
Remodeled 0
Interior Adj.
Other Features
Building Total & Improvement Details

Grade AV 100%
Percentage Complete 100
Total Adjusted Replacement Cost New $197,130
Physical Depreciation (% Bad) 0%
Depreciated Value $141,934
Economic Depreciation (% Bad) 0%
Functional Depreciation (% Bad) 0%
Total Depreciated Value $141,934
Market Area Factor 1.00
Building Value $141,900
Misc Improvements Value
Total Improvement Value $141,900

Assessed Land Value $21,600
   
Assessed Total Value $163,500



Addition Summary 
StoryTypeCodeArea
1.00 ENCLOSED FRAME PORCH EFP 160
1.00 ENC GLASS PORCH EGP 168
 
Other Improvements 
 


Building Sketch
Photograph
Building Sketch Building Photo
(Click sketch for bigger image)