Building Summary

Data last updated on: 1/31/2026     Ownership current as of: 1/29/2026     Tax Year: 2026
REID 1207688

PIN # 1529-36-2753

Location Address Property Description
153 BROOKWOOD DR
   
Property Owner Owner's Mailing Address
WAEGERLE, KEITH G;WAEGERLE, RACHEL A
153 BROOKWOOD DR
SPINDALE NC 28160
Parcel
Buildings
Misc Improvements
Land
Deeds
Notes
Sales
Photos
Map
Building Location Address
153 BROOKWOOD DR
Card   of  1
Building Details

Building Type RESIDENTIAL
Building Use 37
Units 0
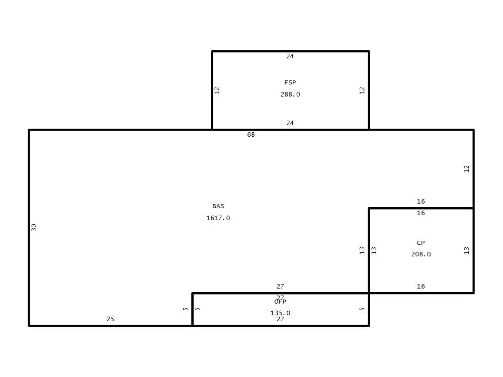
Living Area (SQFT) 1617
Number of Stories 1.00
Style 1 STORY
Foundation BLOCK/BRICK
Frame WOOD FRAME
Exterior BRICK
Const Type WOODF
Heating HEAT PUMP
Air Cond HEAT PUMP
Plumbing Baths (Full):   2
Baths (Half):   0
Extra Fixtures:   2
Total Plumbing Fixtures:   8 
Bedrooms 3
Floor HARDWOOD
Subfloor WOOD FRAME
Roof Cover ASPHALT/FIBERGLASS
Roof Type GABLE
Lighting INCANDESCENT
Main Body (SQFT) 1617
Building Description

Year Built 1966
Additions 5
Effective Year 1980
Remodeled 0
Interior Adj.
Other Features
Building Total & Improvement Details

Grade AV 100%
Percentage Complete 100
Total Adjusted Replacement Cost New $338,484
Physical Depreciation (% Bad) 0%
Depreciated Value $235,712
Economic Depreciation (% Bad) 0%
Functional Depreciation (% Bad) 0%
Total Depreciated Value $235,712
Market Area Factor 1.00
Building Value $235,700
Misc Improvements Value $9,500
Total Improvement Value $245,200

Assessed Land Value $18,000
   
Assessed Total Value $263,200



Addition Summary 
StoryTypeCodeArea
1.00 FULL SCRN PORCH FSP 288
1.00 CARPORT CP 208
1.00 OPEN FRAME PORCH OFP 135
1.00 BASEMENT FINISHED-BELOW GRADE BSMT 740
1.00 BASEMENT UNFINISHED BSMT 648
 
Other Improvements 
UnitsDescriptionItemCodeYear% BadValue
676 SIZE GARAGE FRAME 1975 70 9500
 


Building Sketch
Photograph
Building Sketch Building Photo
(Click sketch for bigger image)