Building Summary

Data last updated on: 1/31/2026     Ownership current as of: 1/29/2026     Tax Year: 2026
REID 1210839

PIN # 1529-57-9367

Location Address Property Description
173 NEBRASKA ST
   
Property Owner Owner's Mailing Address
PENLEY, JESSE;PENLEY, TERESA;CURTIN, MARY ANN
173 NEBRASKA ST
SPINDALE NC 28160
Parcel
Buildings
Misc Improvements
Land
Deeds
Notes
Sales
Photos
Map
Building Location Address
173 NEBRASKA ST
Card   of  1
Building Details

Building Type RESIDENTIAL
Building Use 37
Units 0
Living Area (SQFT) 1872
Number of Stories 1.00
Style 1 STORY
Foundation BLOCK/BRICK
Frame WOOD FRAME
Exterior BRICK
Const Type WOODF
Heating FORCED AIR O/G
Air Cond PKG HEAT/COOLING
Plumbing Baths (Full):   2
Baths (Half):   2
Extra Fixtures:   2
Total Plumbing Fixtures:   12 
Bedrooms 3
Floor HARDWOOD
Subfloor WOOD FRAME
Roof Cover ASPHALT/FIBERGLASS
Roof Type GABLE
Lighting INCANDESCENT
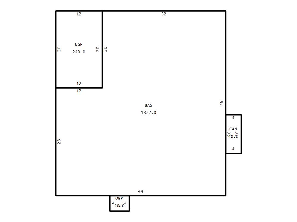
Main Body (SQFT) 1872
Building Description

Year Built 1957
Additions 4
Effective Year 1966
Remodeled 0
Interior Adj.
Other Features
Building Total & Improvement Details

Grade AV 100%
Percentage Complete 100
Total Adjusted Replacement Cost New $342,316
Physical Depreciation (% Bad) 0%
Depreciated Value $196,903
Economic Depreciation (% Bad) 0%
Functional Depreciation (% Bad) 0%
Total Depreciated Value $196,903
Market Area Factor 1.00
Building Value $196,900
Misc Improvements Value
Total Improvement Value $196,900

Assessed Land Value $17,100
   
Assessed Total Value $214,000



Addition Summary 
StoryTypeCodeArea
1.00 ENC GLASS PORCH EGP 240
1.00 OPEN BRICK PORCH OBP 20
1.00 CANOPY CAN 40
1.00 BASEMENT SEMI-FINISHED BSMT 971
 
Other Improvements 
 


Building Sketch
Photograph
Building Sketch Building Photo
(Click sketch for bigger image)