Building Summary

Data last updated on: 4/16/2026     Ownership current as of: 4/13/2026     Tax Year: 2026
REID 1604099

PIN # 1529-06-8359

Location Address Property Description
545 LAUREL HILL DR ANIMAL SHELTER
   
Property Owner Owner's Mailing Address
RUTHERFORD COUNTY
289 N MAIN ST
RUTHERFORDTON NC 28139
Parcel
Buildings
Misc Improvements
Land
Deeds
Notes
Sales
Photos
Map
Building Location Address
545 LAUREL HILL DR
Card   of  1        Section   of  1
Building Details

Building Name ROCO ANIMAL SHELTER
Primary Occupancy Type 72-HOSPITAL/VETRY
Primary Occupancy 39A-VET HOSPITAL
Primary Class MASONRY
Primary Quality VERY GOOD
Year Built 2025
Effective Year 2025
Physical Depreciation (Rating) VERY GOOD
Physical Depreciation (% Bad) 0.00%
Economic Depreciation (% Bad) 0%
Functional Depreciation (% Bad) 0%
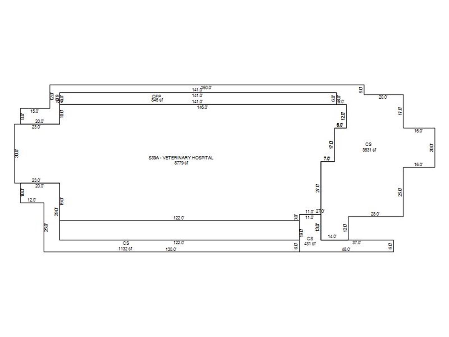
Gross Leasable Area (SQFT) 8779
Remodeled Year
Total Stories

Section Details

Occupancy Type 72-HOSPITAL/VETRY


Air Conditioning HEAT PUMP
Additional Fixtures 8
Half Baths 4
Generator 1
Class MASONRY
Design and Style 1 STORY
Floors CONCRETE
Foundation CONCRETE
Frame MASONRY
Heat HEAT PUMP
Interior Finish DRYWALL
Interior Finish UNFINISHED
Occupancy 39A-VET HOSPITAL
Quality VERY GOOD
Roof Cover METAL
12
Building Total & Improvement Details

Total Adjusted Replacement Cost New $1,023,788
Physical Depreciation (% Bad) 0.00%
Depreciated Value $1,023,788
Economic Depreciation (% Bad) 0%
Functional Depreciation (% Bad) 0%
Total Depreciated Value $1,023,788
Market Area Factor 1.00
Building Value $1,023,800
Misc Improvements Value $71,600
Total Improvement Value $1,095,400

Assessed Land Value $50,500
   
Assessed Total Value


Addition Summary 
StoryTypeCodeArea
1.00 CONCRETE SLAB CS 1132
1.00 CONCRETE SLAB CS 431
1.00 CONCRETE SLAB CS 3631
1.00 OPEN FRAME PORCH OFP 846
 
Other Improvements 
UnitsDescriptionItemCodeYear% BadValue
165 SIZE FENCE 6' HI 2025 0 3000
722 SIZE FENCE 8' W/BW 2025 0 19100
8 UNITS LIGHTING SINGLE 2025 0 22100
96 SIZE GAR/PRE-ENG MTL 2025 0 2300
8800 SIZE ASPHALT PAVING 2025 0 25100
 


Building Sketch
Photograph
Building Sketch Building Photo
(Click sketch for bigger image)