Building Summary

Data last updated on: 4/9/2026     Ownership current as of: 4/7/2026     Tax Year: 2026
REID 1613481

PIN # 1538-87-7333

Location Address Property Description
364 BUTLER RD
   
Property Owner Owner's Mailing Address
NEVERBANKACRE INC
364 BUTLER RD
FOREST CITY NC 28043
Parcel
Buildings
Misc Improvements
Land
Deeds
Notes
Sales
Photos
Map
Building Location Address
364 BUTLER RD
Card   of  1        Section   of  1
Building Details

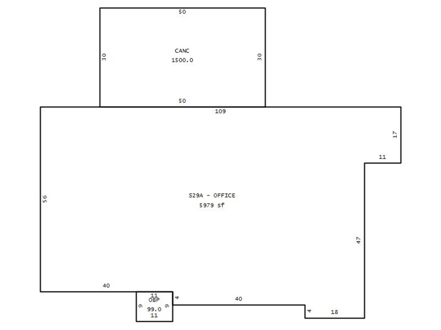
Building Name KING LAW
Primary Occupancy Type 32-OFFICE
Primary Occupancy 29A-OFFICE
Primary Class MASONRY
Primary Quality GOOD
Year Built 1993
Effective Year 2000
Physical Depreciation (Rating) GOOD
Physical Depreciation (% Bad) 25.00%
Economic Depreciation (% Bad) 0%
Functional Depreciation (% Bad) 0%
Gross Leasable Area (SQFT) 5979
Remodeled Year
Total Stories 1

Section Details

Occupancy Type 32-OFFICE


Air Conditioning HEAT PUMP
Full Baths 0
Half Baths 2
Additional Fixtures 4
Bank Window 1
Class MASONRY
Design and Style 1 STORY
Floors CARPET
Floors TILE ASPHALT
Foundation BLOCK/BRICK
Frame MASONRY
Heat HEAT PUMP
Interior Finish DRYWALL
Quality GOOD
Roof Cover TAR & GRAVEL
12
Building Total & Improvement Details

Total Adjusted Replacement Cost New $516,318
Physical Depreciation (% Bad) 25.00%
Depreciated Value $387,238
Economic Depreciation (% Bad) 0%
Functional Depreciation (% Bad) 0%
Total Depreciated Value $387,238
Market Area Factor 1.00
Building Value $387,200
Misc Improvements Value $2,100
Total Improvement Value $389,300

Assessed Land Value $180,800
   
Assessed Total Value $570,100


Addition Summary 
StoryTypeCodeArea
1.00 CANOPY COMM. CANC 1500
1.00 OPEN BRICK PORCH OBP 99
 
Other Improvements 
UnitsDescriptionItemCodeYear% BadValue
3750 SIZE ASPHALT PAVING 1993 80 2100
 


Building Sketch
Photograph
Building Sketch Building Photo
(Click sketch for bigger image)