Building Summary

Data last updated on: 2/1/2026     Ownership current as of: 1/29/2026     Tax Year: 2026
REID 119535

PIN # 1614-85-2678

Location Address Property Description
6268 HUDLOW RD
   
Property Owner Owner's Mailing Address
TRENT INVESTMENTS LLC
4298 HUDLOW RD
RUTHERFORDTON NC 28139
Parcel
Buildings
Misc Improvements
Land
Deeds
Notes
Sales
Photos
Map
Building Location Address
6268 HUDLOW RD
Card   of  1
Building Details

Building Type RESIDENTIAL
Building Use 37
Units 0
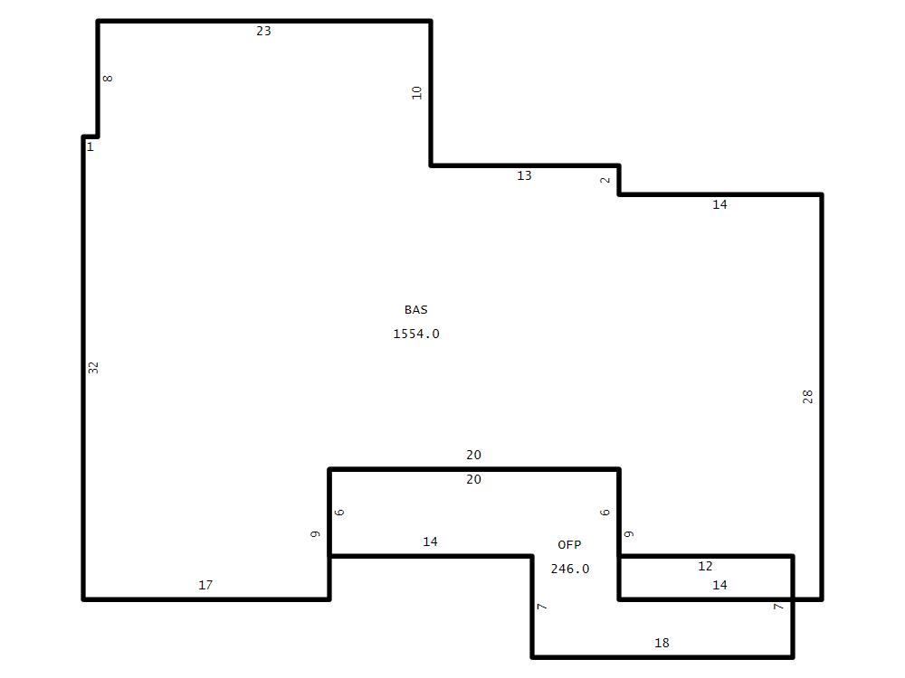
Living Area (SQFT) 1554
Number of Stories 1.00
Style 1 STORY
Foundation BLOCK/BRICK
Frame WOOD FRAME
Exterior SIDING
Const Type WOODF
Heating NONE
Air Cond NO AIR CONDITIONING
Plumbing Baths (Full):   1
Baths (Half):   0
Extra Fixtures:   2
Total Plumbing Fixtures:   5 
Bedrooms 3
Floor SOFTWOOD
Subfloor WOOD FRAME
Roof Cover METAL CORR/5-V
Roof Type GABLE
Lighting INCANDESCENT
Main Body (SQFT) 1554
Building Description

Year Built 1901
Additions 1
Effective Year 1943
Remodeled 0
Interior Adj.
Other Features
Building Total & Improvement Details

Grade FR+5 85%
Percentage Complete 100
Total Adjusted Replacement Cost New $179,258
Physical Depreciation (% Bad) 0%
Depreciated Value $30,474
Economic Depreciation (% Bad) 0%
Functional Depreciation (% Bad) 0%
Total Depreciated Value $30,474
Market Area Factor 1.00
Building Value $30,500
Misc Improvements Value
Total Improvement Value $30,500

Assessed Land Value $12,000
   
Assessed Total Value $42,500



Addition Summary 
StoryTypeCodeArea
1.00 OPEN FRAME PORCH OFP 246
 
Other Improvements 
 


Building Sketch
Photograph
Building Sketch Building Photo
(Click sketch for bigger image)