Building Summary

Data last updated on: 1/31/2026     Ownership current as of: 1/29/2026     Tax Year: 2026
REID 1619802

PIN # 1529-64-2779

Location Address Property Description
122 OVERBROOK DR
   
Property Owner Owner's Mailing Address
FRANCO, MARIELA
122 OVERBROOK DR
SPINDALE NC 28160
Parcel
Buildings
Misc Improvements
Land
Deeds
Notes
Sales
Photos
Map
Building Location Address
122 OVERBROOK DR
Card   of  1
Building Details

Building Type RESIDENTIAL
Building Use 37
Units 0
Living Area (SQFT) 1366
Number of Stories 2.00
Style 2+ STORIES
Foundation BLOCK/BRICK
Frame WOOD FRAME
Exterior SIDING
Const Type WOODF
Heating HEAT PUMP
Air Cond HEAT PUMP
Plumbing Baths (Full):   2
Baths (Half):   1
Extra Fixtures:   2
Total Plumbing Fixtures:   10 
Bedrooms 3
Floor LUXURY VINYL PLANK
Subfloor WOOD FRAME
Roof Cover ASPHALT/FIBERGLASS
Roof Type GABLE
Lighting INCANDESCENT
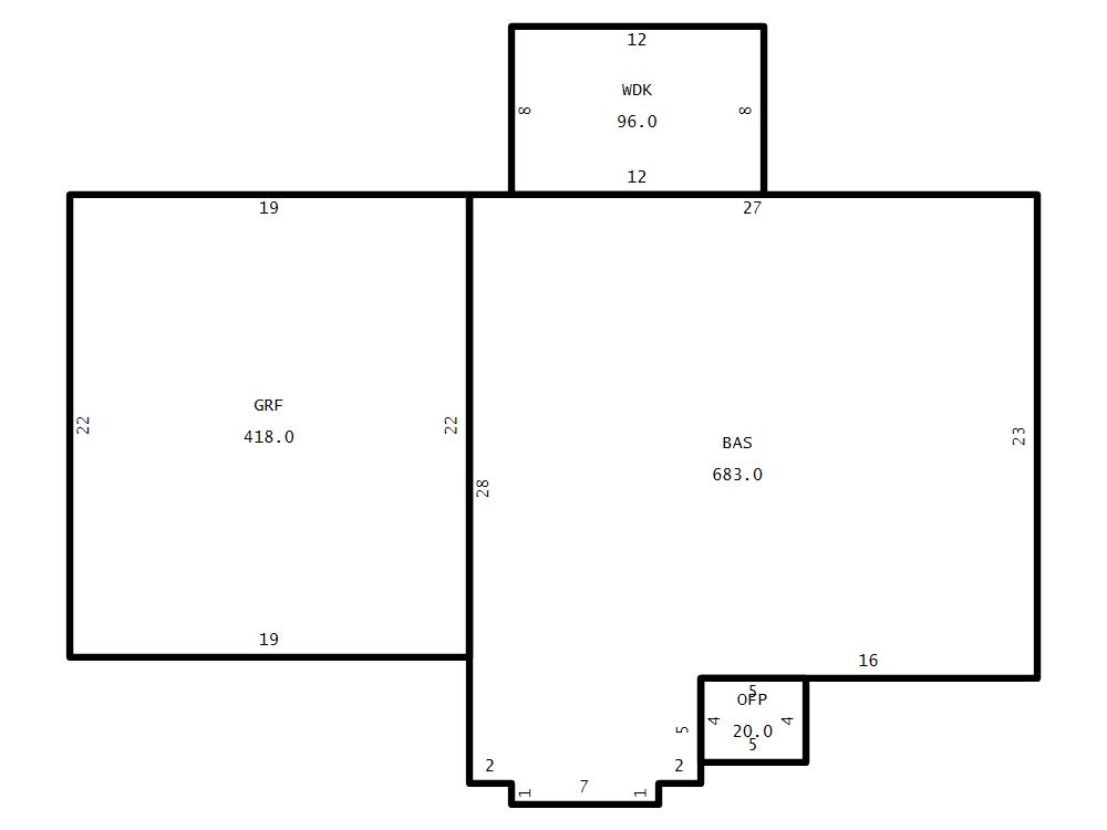
Main Body (SQFT) 683
Building Description

Year Built 1994
Additions 4
Effective Year 1994
Remodeled 0
Interior Adj.
Other Features
Building Total & Improvement Details

Grade AV+5 105%
Percentage Complete 100
Total Adjusted Replacement Cost New $228,812
Physical Depreciation (% Bad) 0%
Depreciated Value $169,321
Economic Depreciation (% Bad) 0%
Functional Depreciation (% Bad) 0%
Total Depreciated Value $169,321
Market Area Factor 1.00
Building Value $169,300
Misc Improvements Value
Total Improvement Value $169,300

Assessed Land Value $18,000
   
Assessed Total Value $187,300



Addition Summary 
StoryTypeCodeArea
1.00 GARAGE FRAME GRF 418
1.00 WOOD DECK WDK 96
1.00 OPEN FRAME PORCH OFP 20
1.00 FINISHED UPPER STORY FINU 683
 
Other Improvements 
 


Building Sketch
Photograph
Building Sketch Building Photo
(Click sketch for bigger image)