Building Summary

Data last updated on: 10/1/2025     Ownership current as of: 9/30/2025     Tax Year: 2025
REID 1631018

PIN # 0692-05-9176

Location Address Property Description
676 COVE RD
   
Property Owner Owner's Mailing Address
BLANTON, JULIAN S TR;BABB, RICHARD L TR;ROSE JACKSON IRREVOCABLE TRUST DATED MARCH 26 2020
10 PLEASANT VIEW DR
MILLS RIVER NC 28759
Parcel
Buildings
Misc Improvements
Land
Deeds
Notes
Sales
Photos
Map
Building Location Address
676 COVE RD
Building Description
37
Card   of  1
Bldg Type RESIDENTIAL
Units 0
Living Area (SQFT) 2626
Number of Stories 1.00
Style 1 STORY
Foundation BLOCK/BRICK
Frame WOOD FRAME
Exterior BRICK
Const Type WOODF
Heating HEAT PUMP
Air Cond HEAT PUMP
Plumbing Baths (Full):   2
Baths (Half):   0
Extra Fixtures:   2
Total Plumbing Fixtures:   8 
Bedrooms 3
Floor CARPET
Subfloor WOOD FRAME
Roof Cover ASPHALT/FIBERGLASS
Roof Type GABLE
Lighting INCANDESCENT
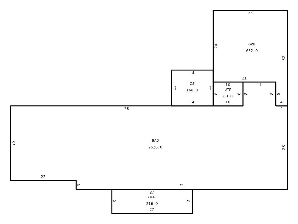
Main Body (SQFT) 2626
Year Built 1972
Additions 4
Effective Year 1980
Remodeled 0
Interior Adj.
Other Features
Building Total & Improvement Details

Grade AV+1 110%
Percentage Complete 100
Total Adjusted Replacement Cost New $456,930
Physical Depreciation (% Bad) GOOD 27%
Depreciated Value $335,842
Economic Depreciation (% Bad) 0
Functional Depreciation (% Bad) 0
Total Depreciated Value $335,842
Market Area Factor 1.00
Building Value $335,800
Misc Improvements Value $2,600
Total Improvement Value $338,400

Assessed Land Value $71,800
   
Assessed Total Value $410,200



Addition Summary 
StoryTypeCodeArea
1.00 OPEN FRAME PORCH OFP 216
1.00 CONCRETE SLAB CS 168
1.00 UTILITY FRAME UTF 80
1.00 GARAGE BRICK GRB 632
 
Other Improvements 
UnitsDescriptionItemCodeYear% BadValue
816 SIZE BARN STORAGE UNF 1972 80 2600
 


Building Sketch
Photograph
Building Sketch Building Photo
(Click sketch for bigger image)