Building Summary

Data last updated on: 10/1/2025     Ownership current as of: 9/30/2025     Tax Year: 2025
REID 1633030

PIN # 0598-18-9986

Location Address Property Description
122 HAMILTON PARK
   
Property Owner Owner's Mailing Address
CARLISLE, DUSTIN
122 HAMILTON PARK
RUTHERFORDTON NC 28139
Parcel
Buildings
Misc Improvements
Land
Deeds
Notes
Sales
Photos
Map
Building Location Address
122 HAMILTON PARK
Building Description
37
Card   of  1
Bldg Type RESIDENTIAL
Units 0
Living Area (SQFT) 1248
Number of Stories 1.00
Style 1 STORY
Foundation BLOCK/BRICK
Frame WOOD FRAME
Exterior SIDING
Const Type WOODF
Heating HEAT PUMP
Air Cond HEAT PUMP
Plumbing Baths (Full):   2
Baths (Half):   0
Extra Fixtures:   2
Total Plumbing Fixtures:   8 
Bedrooms 3
Floor CARPET
Subfloor WOOD FRAME
Roof Cover ASPHALT/FIBERGLASS
Roof Type GABLE
Lighting INCANDESCENT
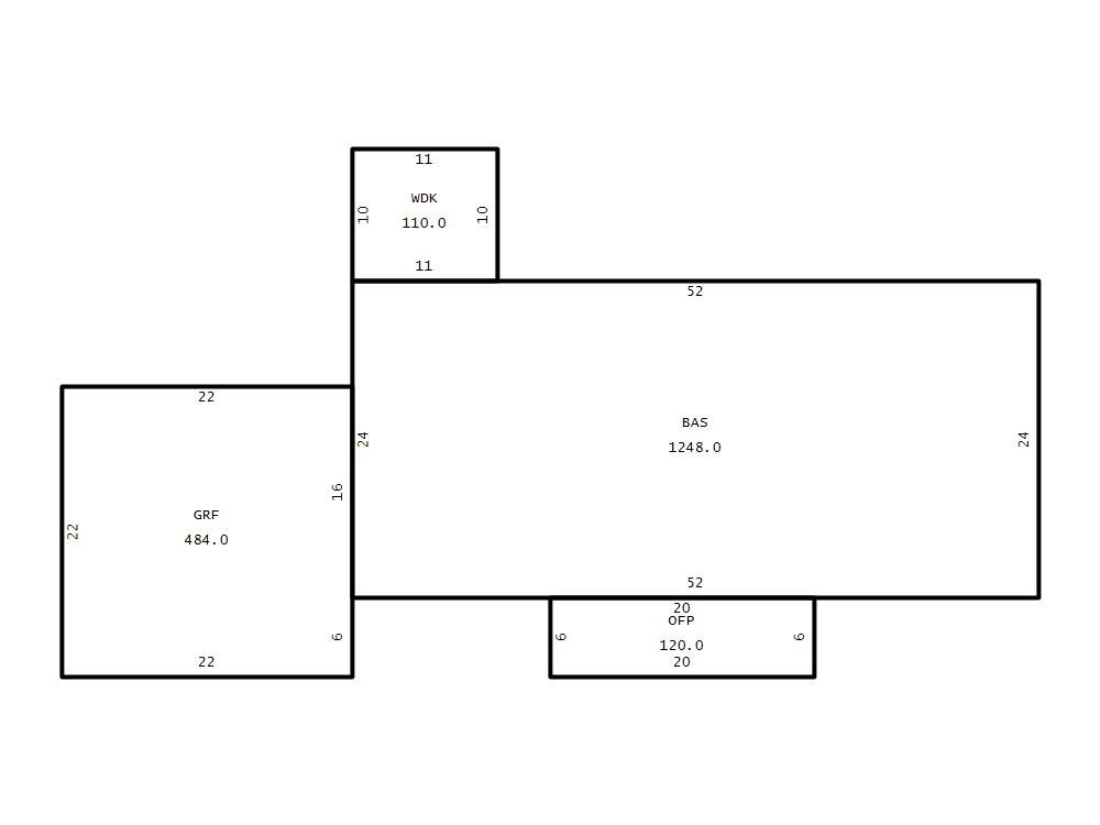
Main Body (SQFT) 1248
Year Built 2000
Additions 4
Effective Year 2000
Remodeled 0
Interior Adj.
Other Features
Building Total & Improvement Details

Grade AV 100%
Percentage Complete 100
Total Adjusted Replacement Cost New $245,064
Physical Depreciation (% Bad) AVER 18%
Depreciated Value $207,617
Economic Depreciation (% Bad) 0
Functional Depreciation (% Bad) 0
Total Depreciated Value $207,617
Market Area Factor 1.00
Building Value $207,600
Misc Improvements Value
Total Improvement Value $207,600

Assessed Land Value $49,900
   
Assessed Total Value $257,500



Addition Summary 
StoryTypeCodeArea
1.00 WOOD DECK WDK 110
1.00 GARAGE FRAME GRF 484
1.00 OPEN FRAME PORCH OFP 120
1.00 BASEMENT UNFINISHED BSMT 1248
 
Other Improvements 
 


Building Sketch
Photograph
Building Sketch Building Photo
(Click sketch for bigger image)