Building Summary

Data last updated on: 10/1/2025     Ownership current as of: 9/30/2025     Tax Year: 2025
REID 1640009

PIN # 0683-25-6545

Location Address Property Description
1324 MCENTIRE RD HUTCHINSON PL:26-336
   
Property Owner Owner's Mailing Address
AUGUSTINE, ANDREW WILLIAM;AUGUSTINE, MELISSA
4851 RIVER FARM RD
MARIETTA GA 30068
Parcel
Buildings
Misc Improvements
Land
Deeds
Notes
Sales
Photos
Map
Building Location Address
1324 MCENTIRE RD
Building Description
37
Card   of  1
Bldg Type RESIDENTIAL
Units 0
Living Area (SQFT) 1872
Number of Stories 2.00
Style 2+ STORIES
Foundation CONCRETE
Frame WOOD FRAME
Exterior Wood Plank Siding
Const Type WOODF
Heating HEAT PUMP
Air Cond HEAT PUMP
Plumbing Baths (Full):   2
Baths (Half):   0
Extra Fixtures:   4
Total Plumbing Fixtures:   10 
Bedrooms 1
Floor HARDWOOD
Subfloor WOOD FRAME
Roof Cover METAL
Roof Type GABLE
Lighting INCANDESCENT
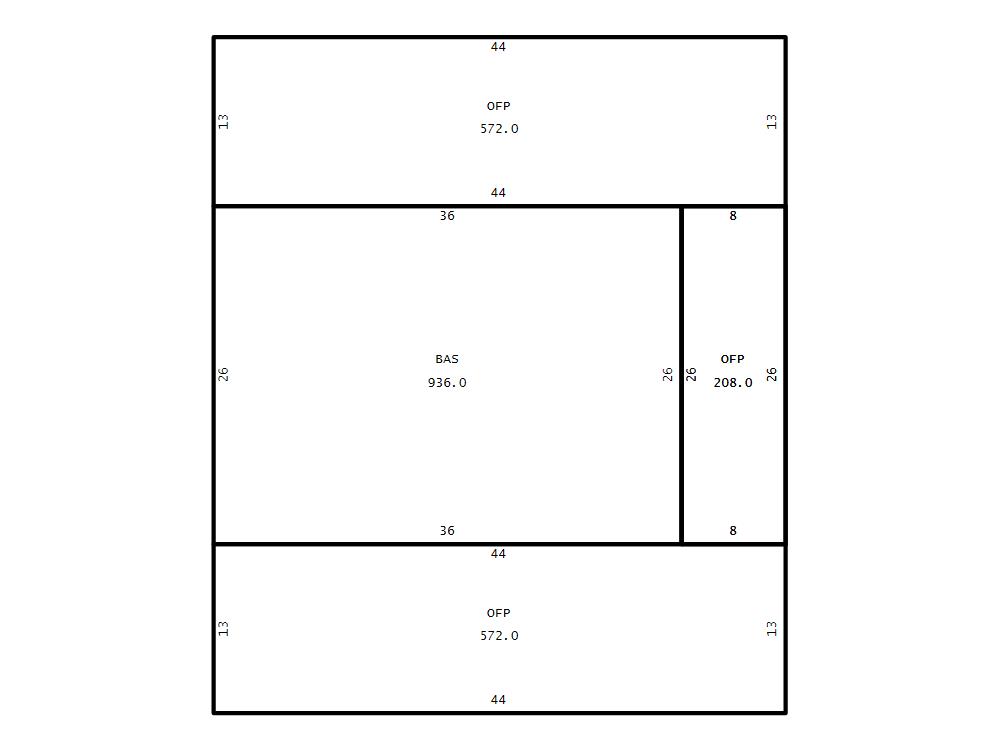
Main Body (SQFT) 936
Year Built 2007
Additions 6
Effective Year 2007
Remodeled 0
Interior Adj.
Other Features
Building Total & Improvement Details

Grade GD 120%
Percentage Complete 100
Total Adjusted Replacement Cost New $463,800
Physical Depreciation (% Bad) GOOD 10%
Depreciated Value $417,420
Economic Depreciation (% Bad) 0
Functional Depreciation (% Bad) 0
Total Depreciated Value $417,420
Market Area Factor 1.00
Building Value $417,400
Misc Improvements Value $12,500
Total Improvement Value $429,900

Assessed Land Value $248,500
   
Assessed Total Value $678,400



Addition Summary 
StoryTypeCodeArea
1.00 OPEN FRAME PORCH OFP 572
1.00 OPEN FRAME PORCH OFP 572
1.00 OPEN FRAME PORCH OFP 208
1.00 OPEN FRAME PORCH OFP 208
1.00 BASEMENT UNFINISHED BSMT 936
1.00 FINISHED UPPER STORY FINU 936
 
Other Improvements 
UnitsDescriptionItemCodeYear% BadValue
434 SIZE SHED EQUIPMENT 2012 55 1500
525 SIZE SHED OPEN 2007 80 500
2048 SIZE BARN STORAGE UNF 2007 80 8200
1 UNITS R/V CAMPSITE 2024 0 2300
 


Building Sketch
Photograph
Building Sketch Building Photo
(Click sketch for bigger image)