Building Summary

Data last updated on: 2/1/2026     Ownership current as of: 1/29/2026     Tax Year: 2026
REID 1644520

PIN # 1614-95-0665

Location Address Property Description
129 WADE DR MAJESTIC OAK LO:2A PL:19-56
   
Property Owner Owner's Mailing Address
VINTON, ALEXANDER BRANDON;VINTON, REBECCA LAUREN
129 WADE DRIVE
UNION MILLS NC 28167
Parcel
Buildings
Misc Improvements
Land
Deeds
Notes
Sales
Photos
Map
Building Location Address
129 WADE DR
Card   of  1
Building Details

Building Type RESIDENTIAL
Building Use 37
Units 0
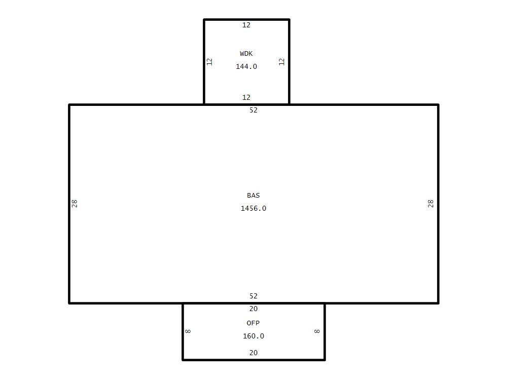
Living Area (SQFT) 1456
Number of Stories 1.00
Style 1 STORY
Foundation BLOCK/BRICK
Frame WOOD FRAME
Exterior SIDING
Const Type WOODF
Heating HEAT PUMP
Air Cond HEAT PUMP
Plumbing Baths (Full):   2
Baths (Half):   0
Extra Fixtures:   4
Total Plumbing Fixtures:   10 
Bedrooms 3
Floor CARPET
Subfloor WOOD FRAME
Roof Cover ASPHALT/FIBERGLASS
Roof Type GABLE
Lighting INCANDESCENT
Main Body (SQFT) 1456
Building Description

Year Built 1980
Additions 2
Effective Year 2002
Remodeled 0
Interior Adj.
Other Features
Building Total & Improvement Details

Grade FR 80%
Percentage Complete 100
Total Adjusted Replacement Cost New $169,350
Physical Depreciation (% Bad) 0%
Depreciated Value $142,254
Economic Depreciation (% Bad) 0%
Functional Depreciation (% Bad) 0%
Total Depreciated Value $142,254
Market Area Factor 1.00
Building Value $142,300
Misc Improvements Value
Total Improvement Value $142,300

Assessed Land Value $9,600
   
Assessed Total Value $151,900



Addition Summary 
StoryTypeCodeArea
1.00 OPEN FRAME PORCH OFP 160
1.00 WOOD DECK WDK 144
 
Other Improvements 
 


Building Sketch
Photograph
Building Sketch Building Photo
(Click sketch for bigger image)