Building Summary

Data last updated on: 4/6/2026     Ownership current as of: 3/30/2026     Tax Year: 2026
REID 417097

PIN # 1549-70-0158

Location Address Property Description
296 N BROADWAY ST
   
Property Owner Owner's Mailing Address
VEGA, RAMON BOLANOS;PLASCENSIA, MARIA AMELIA
106 W MARION ST
CHESNEE SC 29323
Parcel
Buildings
Misc Improvements
Land
Deeds
Notes
Sales
Photos
Map
Building Location Address
296 N BROADWAY ST
Card   of  1
Building Details

Building Type RESIDENTIAL
Building Use 37
Units 0
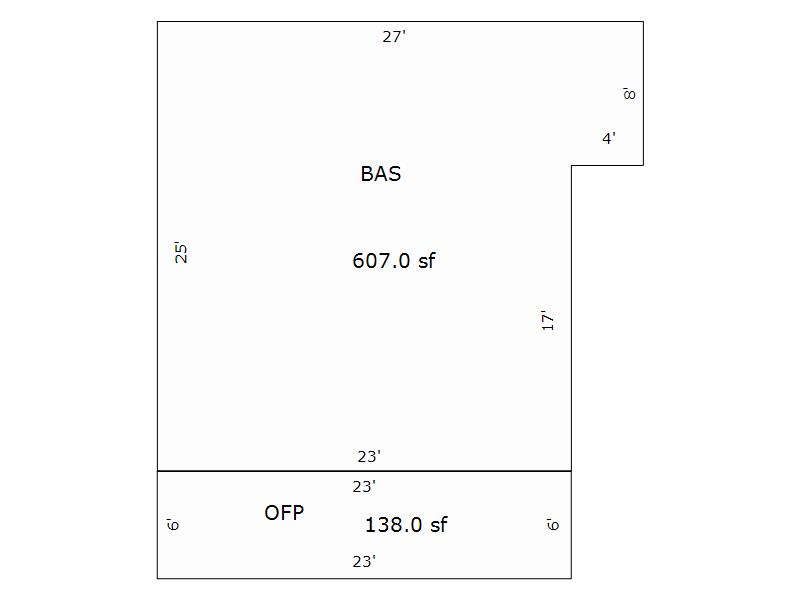
Living Area (SQFT) 607
Number of Stories 1.00
Style 1 STORY
Foundation BLOCK/BRICK
Frame WOOD FRAME
Exterior SIDING
Const Type WOODF
Heating ELECTRIC BASE BOARD
Air Cond NO AIR CONDITIONING
Plumbing Baths (Full):   1
Baths (Half):   0
Extra Fixtures:   2
Total Plumbing Fixtures:   5 
Bedrooms 0
Floor LUXURY VINYL PLANK
Subfloor WOOD FRAME
Roof Cover ASPHALT/FIBERGLASS
Roof Type GABLE
Lighting INCANDESCENT
Main Body (SQFT) 607
Building Description

Year Built 1920
Additions 1
Effective Year 1970
Remodeled 0
Interior Adj.
Other Features
Building Total & Improvement Details

Grade FR+1 90%
Percentage Complete 100
Total Adjusted Replacement Cost New $109,690
Physical Depreciation (% Bad) 0%
Depreciated Value $65,814
Economic Depreciation (% Bad) 0%
Functional Depreciation (% Bad) 0%
Total Depreciated Value $65,814
Market Area Factor 1.00
Building Value $65,800
Misc Improvements Value
Total Improvement Value $65,800

Assessed Land Value $7,200
   
Assessed Total Value $73,000



Addition Summary 
StoryTypeCodeArea
1.00 OPEN FRAME PORCH OFP 138
 
Other Improvements 
 


Building Sketch
Photograph
Building Sketch Building Photo
(Click sketch for bigger image)