Building Summary

Data last updated on: 4/6/2026     Ownership current as of: 3/30/2026     Tax Year: 2026
REID 1655785

PIN # 1558-29-0923

Location Address Property Description
211 MCMURRAY RD PL:43-61
   
Property Owner Owner's Mailing Address
STENARD, JOSEPH M;STENARD, ALICIA C
211 MCMURRAY RD
FOREST CITY NC 28043
Parcel
Buildings
Misc Improvements
Land
Deeds
Notes
Sales
Photos
Map
Building Location Address
211 MCMURRAY RD
Card   of  1
Building Details

Building Type RESIDENTIAL
Building Use 37
Units 0
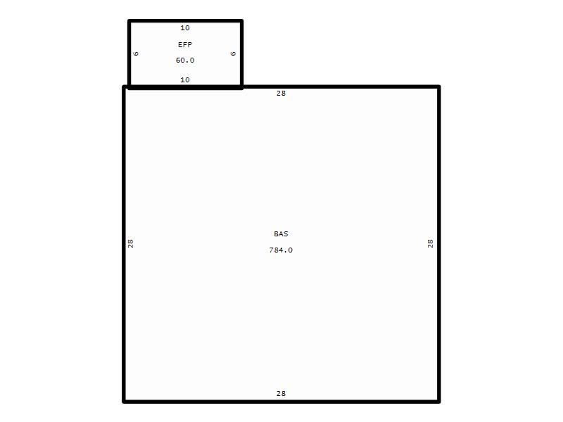
Living Area (SQFT) 784
Number of Stories 1.00
Style 1 STORY
Foundation BLOCK/BRICK
Frame WOOD FRAME
Exterior SIDING
Const Type WOODF
Heating FLOOR/WALL FURNACE
Air Cond NO AIR CONDITIONING
Plumbing Baths (Full):   1
Baths (Half):   0
Extra Fixtures:   2
Total Plumbing Fixtures:   5 
Bedrooms 2
Floor CARPET
Subfloor WOOD FRAME
Roof Cover ASPHALT/FIBERGLASS
Roof Type GABLE
Lighting INCANDESCENT
Main Body (SQFT) 784
Building Description

Year Built 1946
Additions 1
Effective Year 1960
Remodeled 0
Interior Adj.
Other Features
Building Total & Improvement Details

Grade FR 80%
Percentage Complete 100
Total Adjusted Replacement Cost New $116,900
Physical Depreciation (% Bad) 0%
Depreciated Value $54,943
Economic Depreciation (% Bad) 0%
Functional Depreciation (% Bad) 0%
Total Depreciated Value $54,943
Market Area Factor 1.00
Building Value $54,900
Misc Improvements Value $100
Total Improvement Value $55,000

Assessed Land Value $174,900
   
Assessed Total Value $104,000



Addition Summary 
StoryTypeCodeArea
1.00 ENCLOSED FRAME PORCH EFP 60
 
Other Improvements 
UnitsDescriptionItemCodeYear% BadValue
1 UNITS SHED W/SIDE 2012 55 100
 


Building Sketch
Photograph
Building Sketch Building Photo
(Click sketch for bigger image)