Building Summary

Data last updated on: 4/21/2026     Ownership current as of: 4/17/2026     Tax Year: 2026
REID 1657613

PIN # 1538-22-5876

Location Address Property Description
1668 OAKLAND RD LO:2 PL:45-54
   
Property Owner Owner's Mailing Address
VALLEYBREEZE LLC
820 MAUNEY COVE RD
WAYNESVILLE NC 28786
Parcel
Buildings
Misc Improvements
Land
Deeds
Notes
Sales
Photos
Map
Building Location Address
1668 OAKLAND RD
Card   of  1
Building Details

Building Type RESIDENTIAL
Building Use 37
Units 0
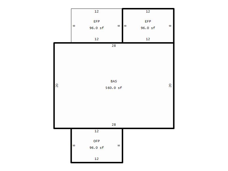
Living Area (SQFT) 560
Number of Stories 1.00
Style 1 STORY
Foundation BLOCK/BRICK
Frame WOOD FRAME
Exterior SIDING
Const Type WOODF
Heating NONE
Air Cond NO AIR CONDITIONING
Plumbing Baths (Full):   1
Baths (Half):   0
Extra Fixtures:   2
Total Plumbing Fixtures:   5 
Bedrooms 2
Floor CARPET
Subfloor WOOD FRAME
Roof Cover ASPHALT/FIBERGLASS
Roof Type GABLE
Lighting INCANDESCENT
Main Body (SQFT) 560
Building Description

Year Built 1923
Additions 3
Effective Year 1968
Remodeled 0
Interior Adj.
Other Features
Building Total & Improvement Details

Grade LW 60%
Percentage Complete 100
Total Adjusted Replacement Cost New $75,185
Physical Depreciation (% Bad) 0%
Depreciated Value $43,607
Economic Depreciation (% Bad) 0%
Functional Depreciation (% Bad) 0%
Total Depreciated Value $43,607
Market Area Factor 1.00
Building Value $43,600
Misc Improvements Value $3,300
Total Improvement Value $46,900

Assessed Land Value $5,600
   
Assessed Total Value $52,500



Addition Summary 
StoryTypeCodeArea
1.00 ENCLOSED FRAME PORCH EFP 96
1.00 OPEN FRAME PORCH OFP 96
1.00 ENCLOSED FRAME PORCH EFP 96
 
Other Improvements 
UnitsDescriptionItemCodeYear% BadValue
260 SIZE GARAGE CONCRETE BLK 1923 70 3000
112 SIZE UTILITY FRAME 1923 80 200
144 SIZE SHED EQUIPMENT 1923 80 100
 


Building Sketch
Photograph
Building Sketch Building Photo
(Click sketch for bigger image)