Detailed Property Information

Building Summary

Data last updated on: 1/1/0001     Ownership current as of: 4/8/2026     Tax Year: 2026
REID 5899961286000

PIN # 5899-96-1286

Location Address Property Description
6500 Blazingwood DR LO:031 BL:4765
   
Property Owner Owner's Mailing Address
CECIL, WILLIAM TYLER;CECIL, NICOLE CECIL
6500 BLAZINGWOOD DR
PFAFFTOWN NC 27040
Parcel
Buildings
Misc Improvements
Land
Deeds
Notes
Sales
Photos
Tax Bill
Map
Building Location Address
6500 Blazingwood DR
Building Description
SINGLE-FAMILY
Card   of  1
Bldg Type RESIDENTIAL
Units 0
Living Area (SQFT) 1756
Number of Stories 1.00
Style RANCH
Foundation MASONRY
Frame MASONRY
Exterior BRICK
Const Type
Heating Heat Pump
Air Cond CENTRAL
Plumbing Baths (Full):   3
Baths (Half):   1
Extra Fixtures:   0
Total Plumbing Fixtures:   11 
Bedrooms 3
Floor CARPET-VINYL
Roof Cover Asphalt Shingle
Roof Type GABLE
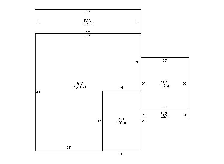
Main Body (SQFT) 1756
Year Built 1970
Additions 5
Effective Year 1992
Remodeled 0
Interior Adj.
Other Features
Building Total & Improvement Details

Grade B-10 110%
Percentage Complete 100
Total Adjusted Replacement Cost New $401,289
Physical Depreciation (% Bad) AVER 35%
Depreciated Value $260,838
Economic Depreciation (% Bad) 0
Functional Depreciation (% Bad) 0
Total Depreciated Value $260,838
Market Area Factor 1.00
Building Value $260,800
Misc Improvements Value $25,200
Total Improvement Value $286,000

Assessed Land Value $67,500
   
Assessed Total Value $353,500



Addition Summary 
StoryTypeCodeArea
1.00 PATIO AVERAGE PATI 484
1.00 CARPORT AVERAGE CARP 440
1.00 UTILITY MASONRY UTIL 80
1.00 PATIO AVERAGE PATI 400
1.00 BASEMENT-UNFIN-CF BASE 1756
 
Other Improvements 
UnitsDescriptionItemCodeYear% BadValue
12x16 DIMENSIONS STORAGE-BLDG-R 2023 8 1500
15x40 DIMENSIONS PL-NON-DIVING-VINYL-R 2024 7 18700
1530 SIZE POOL-DECK-CONCRETE-R 2024 7 5000
 


Building Sketch
Photograph
Building Sketch Building Photo
(Click sketch for bigger image)