Detailed Property Information

Building Summary

Data last updated on: 1/1/0001     Ownership current as of: 4/8/2026     Tax Year: 2026
REID 6809061262000

PIN # 6809-06-1262

Location Address Property Description
3255 Wide Country RD LO:038 BL:4765
   
Property Owner Owner's Mailing Address
STANLEY, AARON DAVIS;STANLEY, BRIANNA NICOLE CHAMBERS
3255 WIDE COUNTRY RD
PFAFFTOWN NC 27040
Parcel
Buildings
Misc Improvements
Land
Deeds
Notes
Sales
Photos
Tax Bill
Map
Building Location Address
3255 Wide Country RD
Building Description
SINGLE-FAMILY
Card   of  1
Bldg Type RESIDENTIAL
Units 0
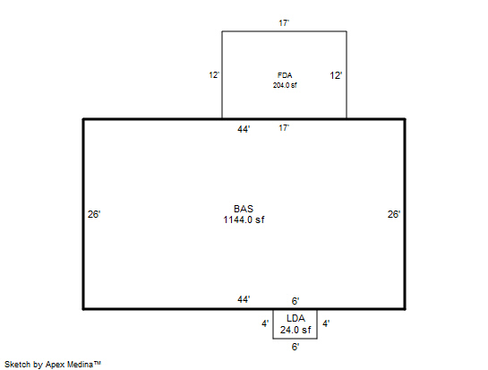
Living Area (SQFT) 1144
Number of Stories 1.00
Style SPLIT-FOYER
Foundation MASONRY
Frame FRAME
Exterior VINYL
Const Type
Heating Heat Pump
Air Cond HEAT PUMP
Plumbing Baths (Full):   2
Baths (Half):   0
Extra Fixtures:   0
Total Plumbing Fixtures:   6 
Bedrooms 3
Floor CARPET-CONCRETE
Roof Cover Asphalt Shingle
Roof Type GABLE
Main Body (SQFT) 1144
Year Built 1973
Additions 5
Effective Year 2002
Remodeled 2014
Interior Adj.
Other Features
Building Total & Improvement Details

Grade C+10 110%
Percentage Complete 100
Total Adjusted Replacement Cost New $266,099
Physical Depreciation (% Bad) AVER 24%
Depreciated Value $202,653
Economic Depreciation (% Bad) 0
Functional Depreciation (% Bad) 0
Total Depreciated Value $202,653
Market Area Factor 1.00
Building Value $202,700
Misc Improvements Value
Total Improvement Value $202,700

Assessed Land Value $45,000
   
Assessed Total Value $247,700



Addition Summary 
StoryTypeCodeArea
1.00 FRAME DECK AVERAGE FRAM 204
1.00 LANDING AVERAGE LAND 24
1.00 BASEMENT-UNFIN-CF BASE 723
1.00 BASEMENT-FIN-AVG-R BASE 421
1.00 LANDING AVERAGE-R LAND 1
 
Other Improvements 
 


Building Sketch
Photograph
Building Sketch Building Photo
(Click sketch for bigger image)