Detailed Property Information

Building Summary

Data last updated on: 1/1/0001     Ownership current as of: 4/24/2026     Tax Year: 2026
REID 6808581226000

PIN # 6808-58-1226

Location Address Property Description
5620 Main ST LO:006 BL:4849
   
Property Owner Owner's Mailing Address
FLOWERS, STEPHANIE
5620 MAIN ST
BETHANIA NC 27040
Parcel
Buildings
Misc Improvements
Land
Deeds
Notes
Sales
Photos
Tax Bill
Map
Building Location Address
5620 Main ST
Building Description
SINGLE-FAMILY
Card   of  1
Bldg Type RESIDENTIAL
Units 0
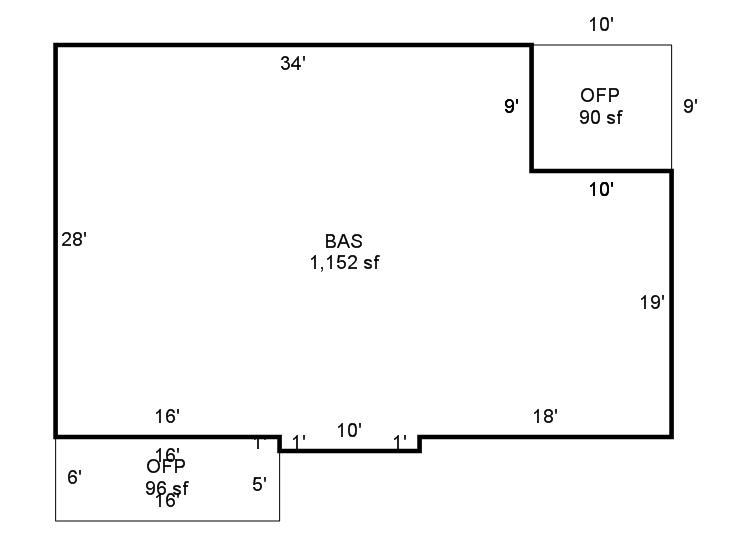
Living Area (SQFT) 1152
Number of Stories 1.00
Style CONVENTIONAL
Foundation MASONRY
Frame FRAME
Exterior ALUMINUM
Const Type
Heating Forced Warm Air
Air Cond CENTRAL
Plumbing Baths (Full):   2
Baths (Half):   0
Extra Fixtures:   0
Total Plumbing Fixtures:   6 
Bedrooms 3
Floor CONCRETE
Roof Cover Asphalt Shingle
Roof Type GABLE
Main Body (SQFT) 1152
Year Built 1941
Additions 4
Effective Year 1985
Remodeled 0
Interior Adj.
Other Features
Building Total & Improvement Details

Grade C+5 105%
Percentage Complete 100
Total Adjusted Replacement Cost New $228,948
Physical Depreciation (% Bad) AVER 55%
Depreciated Value $103,027
Economic Depreciation (% Bad) 0
Functional Depreciation (% Bad) 0
Total Depreciated Value $103,027
Market Area Factor 1.04
Building Value $107,100
Misc Improvements Value $300
Total Improvement Value $107,400

Assessed Land Value $59,100
   
Assessed Total Value $166,500



Addition Summary 
StoryTypeCodeArea
1.00 OPEN FRAME PORCH OPEN 96
1.00 OPEN FRAME PORCH OPEN 90
1.00 BASEMENT-UNFIN-CF BASE 240
1.00 ATTIC FINISHED ATTI 385
 
Other Improvements 
UnitsDescriptionItemCodeYear% BadValue
8x8 DIMENSIONS SHED-R 1941 80 300
 


Building Sketch
Photograph
Building Sketch Building Photo
(Click sketch for bigger image)