Detailed Property Information

Building Summary

Data last updated on: 1/1/0001     Ownership current as of: 2/27/2026     Tax Year: 2026
REID 6836381100000

PIN # 6836-38-1100

Location Address Property Description
3006 N Patterson AVE LO:038 BL:1186
   
Property Owner Owner's Mailing Address
CUBERO, NEMESIS
3006 N PATTERSON AVE
WINSTON SALEM NC 27105
Parcel
Buildings
Misc Improvements
Land
Deeds
Notes
Sales
Photos
Tax Bill
Map
Building Location Address
3006 N Patterson AVE
Building Description
SINGLE-FAMILY
Card   of  1
Bldg Type RESIDENTIAL
Units 0
Living Area (SQFT) 2041
Number of Stories 2.00
Style CONVENTIONAL
Foundation MASONRY
Frame FRAME
Exterior VINYL
Const Type
Heating Forced Warm Air
Air Cond CENTRAL
Plumbing Baths (Full):   2
Baths (Half):   0
Extra Fixtures:   0
Total Plumbing Fixtures:   6 
Bedrooms 4
Floor CARPET-HARDWOOD
Roof Cover Asphalt Shingle
Roof Type HIP
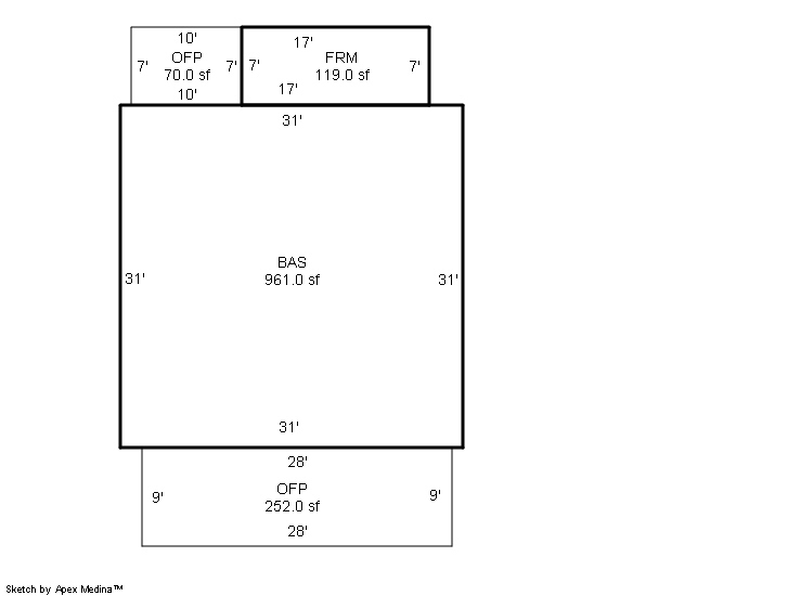
Main Body (SQFT) 961
Year Built 1932
Additions 5
Effective Year 1992
Remodeled 2004
Interior Adj.
Other Features
Building Total & Improvement Details

Grade C 100%
Percentage Complete 100
Total Adjusted Replacement Cost New $293,902
Physical Depreciation (% Bad) AVER 42%
Depreciated Value $170,463
Economic Depreciation (% Bad) 0
Functional Depreciation (% Bad) 0
Total Depreciated Value $170,463
Market Area Factor 1.10
Building Value $187,500
Misc Improvements Value
Total Improvement Value $187,500

Assessed Land Value $15,000
   
Assessed Total Value $202,500



Addition Summary 
StoryTypeCodeArea
1.00 OPEN FRAME PORCH OPEN 252
1.00 FRAME ADDITION FRAM 119
1.00 OPEN FRAME PORCH OPEN 70
1.00 UPPER STORY FINISHED UPPE 961
1.00 BASEMENT-UNFIN-EF BASE 232
 
Other Improvements 
 


Building Sketch
Photograph
Building Sketch Building Photo
(Click sketch for bigger image)