Detailed Property Information

Building Summary

Data last updated on: 1/1/0001     Ownership current as of: 4/24/2026     Tax Year: 2026
REID 6808792197000

PIN # 6808-79-2197

Location Address Property Description
1980 Bethania-Rural Hall RD LO:011 BL:4977
   
Property Owner Owner's Mailing Address
SFH HOLDINGS LLC
1980 BETHANIA RURAL HALL RD
WINSTON SALEM NC 27106
Parcel
Buildings
Misc Improvements
Land
Deeds
Notes
Sales
Photos
Tax Bill
Map
Building Location Address
1980 Bethania-Rural Hall RD
Building Description
SINGLE-FAMILY
Card   of  1
Bldg Type RESIDENTIAL
Units 0
Living Area (SQFT) 1296
Number of Stories 1.00
Style DOUBLE-WIDE
Foundation MASONRY
Frame FRAME
Exterior VINYL
Const Type
Heating Heat Pump
Air Cond HEAT PUMP
Plumbing Baths (Full):   2
Baths (Half):   0
Extra Fixtures:   0
Total Plumbing Fixtures:   6 
Bedrooms 3
Floor CARPET-PLYWOOD
Roof Cover Asphalt Shingle
Roof Type GABLE
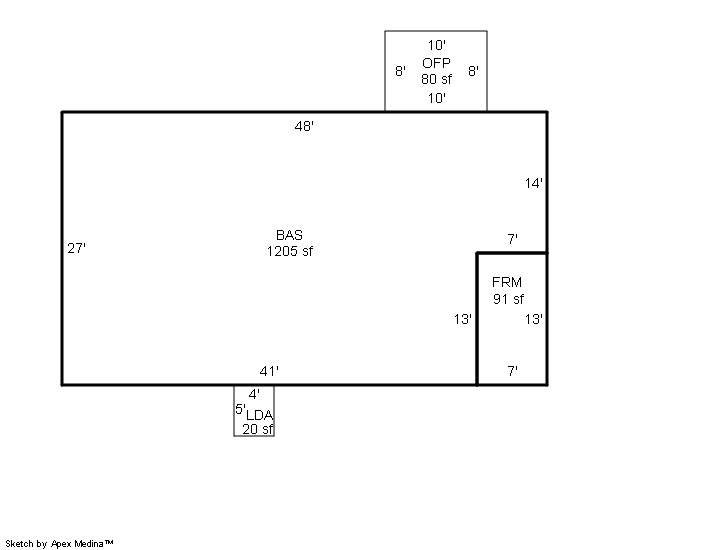
Main Body (SQFT) 1205
Year Built 1998
Additions 4
Effective Year 1998
Remodeled 0
Interior Adj.
Other Features
Building Total & Improvement Details

Grade D-20 66%
Percentage Complete 100
Total Adjusted Replacement Cost New $134,270
Physical Depreciation (% Bad) AVER 37%
Depreciated Value $84,590
Economic Depreciation (% Bad) 0
Functional Depreciation (% Bad) 0
Total Depreciated Value $84,590
Market Area Factor 1.04
Building Value $88,000
Misc Improvements Value $1,000
Total Improvement Value $89,000

Assessed Land Value $45,000
   
Assessed Total Value $134,000



Addition Summary 
StoryTypeCodeArea
1.00 LANDING AVERAGE LAND 20
1.00 FRAME ADDITION FRAM 91
1.00 OPEN FRAME PORCH OPEN 80
1.00 LANDING AVERAGE-R LAND 1
 
Other Improvements 
UnitsDescriptionItemCodeYear% BadValue
15x10 DIMENSIONS UTILITY-BLDG-R 2000 90 300
20x20 DIMENSIONS CPP-R 2000 90 700
 


Building Sketch
Photograph
Building Sketch Building Photo
(Click sketch for bigger image)