Detailed Property Information

Building Summary

Data last updated on: 1/1/0001     Ownership current as of: 3/20/2026     Tax Year: 2026
REID 6836966081000

PIN # 6836-96-6081

Location Address Property Description
2532 Ansonia ST LO:158 BL:1216
   
Property Owner Owner's Mailing Address
JOHNSON, CHRISTY
2532 ANSONIA ST
WINSTON SALEM NC 27105
Parcel
Buildings
Misc Improvements
Land
Deeds
Notes
Sales
Photos
Tax Bill
Map
Building Location Address
2532 Ansonia ST
Building Description
SINGLE-FAMILY
Card   of  1
Bldg Type RESIDENTIAL
Units 0
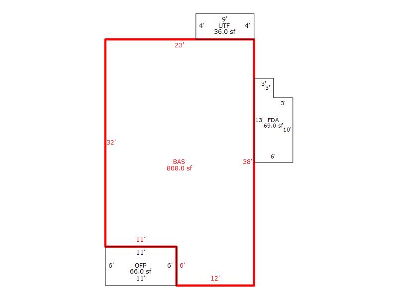
Living Area (SQFT) 808
Number of Stories 1.00
Style CONVENTIONAL
Foundation MASONRY
Frame FRAME
Exterior VINYL
Const Type
Heating Heat Pump
Air Cond CENTRAL
Plumbing Baths (Full):   2
Baths (Half):   0
Extra Fixtures:   0
Total Plumbing Fixtures:   6 
Bedrooms 2
Floor CARPET-HARDWOOD
Roof Cover Asphalt Shingle
Roof Type GABLE
Main Body (SQFT) 808
Year Built 2017
Additions 3
Effective Year 2018
Remodeled 0
Interior Adj.
Other Features
Building Total & Improvement Details

Grade C-10 90%
Percentage Complete 100
Total Adjusted Replacement Cost New $128,851
Physical Depreciation (% Bad) AVER 6%
Depreciated Value $121,120
Economic Depreciation (% Bad) 20
Functional Depreciation (% Bad) 0
Total Depreciated Value $96,896
Market Area Factor 1.00
Building Value $96,900
Misc Improvements Value
Total Improvement Value $96,900

Assessed Land Value $9,000
   
Assessed Total Value $105,900



Addition Summary 
StoryTypeCodeArea
1.00 OPEN FRAME PORCH OPEN 66
1.00 FRAME DECK AVERAGE FRAM 69
1.00 UTILITY FRAME UTIL 36
 
Other Improvements 
 


Building Sketch
Photograph
Building Sketch Building Photo
(Click sketch for bigger image)