Detailed Property Information

Building Summary

Data last updated on: 1/1/0001     Ownership current as of: 4/24/2026     Tax Year: 2026
REID 6835178085000

PIN # 6835-17-8085

Location Address Property Description
201 W Fourth ST OLD CVS DRUG STORE LO:016 BL:0028 BU:1
   
Property Owner Owner's Mailing Address
HHH CAPITAL INVESTMENTS LLC
905 LIMBERLOST LN
LEWISVILLE NC 27023
Parcel
Buildings
Misc Improvements
Land
Income
Deeds
Notes
Sales
Photos
Tax Bill
Map
Building Location Address
201 W Fourth ST
Card   of  1        Section   of  2
Building Details

Building Name Cvs Drug Store (Old Revco-CVS (REVCO) DRUG STORE
Primary Occupancy Type 13
Primary Occupancy 13-353-Retail Store
Primary Class C
Primary Quality Good
Year Built 1926
Effective Year 1998
Physical Depreciation (Rating) AVERAGE
Physical Depreciation (% Bad) 37.00
Economic Depreciation (% Bad)
Functional Depreciation (% Bad)
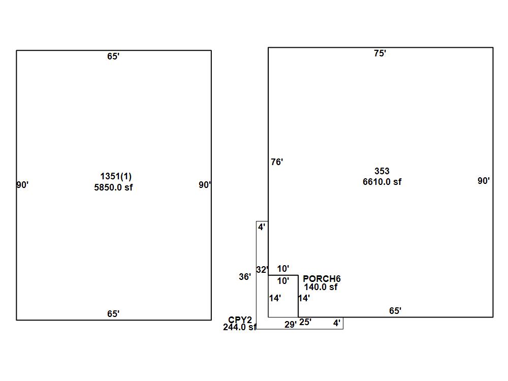
Gross Leasable Area (SQFT) 12460
Remodeled Year 1997
Total Stories 1

Foundation Concrete
Roof Type Flat
Roof Cover Tar & Gravel
Roof Cover Built-Up
Insulation NONE
Exterior Finish Metal
Exterior Finish Brick/Block
Construction REIN-CONC./1-STY
Section Details

Occupancy Type 70


Heat 649-No HVAC
Occupancy 703-Unfinished Basem
Quality Low
Exterior Walls 812-Concrete Block
Depreciation 28%
Depreciation MSVPO - COMM ONLY
Class C
Building Total & Improvement Details

Total Adjusted Replacement Cost New $1,175,556
Physical Depreciation (% Bad) AVERAGE 37.00
Depreciated Value $845,229
Economic Depreciation (% Bad) 0
Functional Depreciation (% Bad) 0
Total Depreciated Value $845,229
Market Area Factor 1.00
Building Value $845,200
Misc Improvements Value
Total Improvement Value $845,200

Assessed Land Value $203,700
   
Assessed Total Value $1,245,300


Addition Summary 
StoryTypeCodeArea
1.00 CANOPY 2 CANO 244
1.00 OPEN PORCHES 6 OPEN 140
 
Other Improvements 
 


Building Sketch
Photograph
Building Sketch Building Photo
(Click sketch for bigger image)