Detailed Property Information

Building Summary

Data last updated on: 1/1/0001     Ownership current as of: 4/3/2026     Tax Year: 2026
REID 6876684400000

PIN # 6876-68-4400

Location Address Property Description
210 Cokesbury DR LO:019 BL:5345B
   
Property Owner Owner's Mailing Address
WHISENANT, MICHELLE;WHISENANT, RANDALL
210 COKESBURY DR
KERNERSVILLE NC 27284
Parcel
Buildings
Misc Improvements
Land
Deeds
Notes
Sales
Photos
Tax Bill
Map
Building Location Address
210 Cokesbury DR
Building Description
SINGLE-FAMILY
Card   of  1
Bldg Type RESIDENTIAL
Units 0
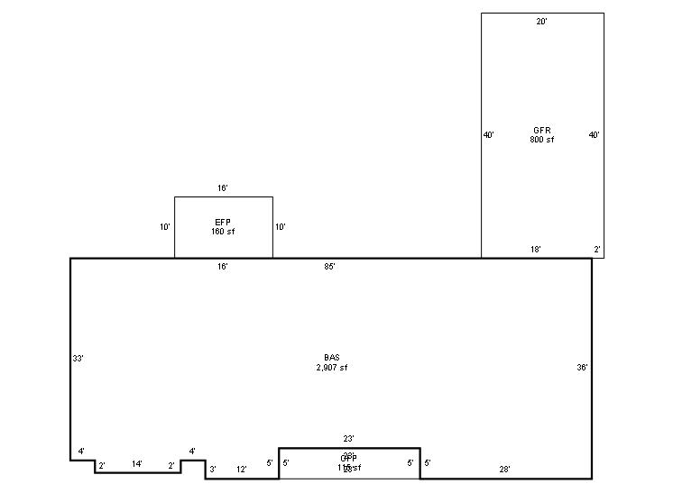
Living Area (SQFT) 2907
Number of Stories 1.00
Style RANCH
Foundation MASONRY
Frame MASONRY
Exterior BRICK
Const Type
Heating Heat Pump
Air Cond HEAT PUMP
Plumbing Baths (Full):   4
Baths (Half):   0
Extra Fixtures:   0
Total Plumbing Fixtures:   12 
Bedrooms 3
Floor CARPET-PLYWOOD
Roof Cover Asphalt Shingle
Roof Type GABLE
Main Body (SQFT) 2907
Year Built 1977
Additions 5
Effective Year 2009
Remodeled 0
Interior Adj.
Other Features
Building Total & Improvement Details

Grade C-5 95%
Percentage Complete 100
Total Adjusted Replacement Cost New $587,294
Physical Depreciation (% Bad) AVER 16%
Depreciated Value $493,327
Economic Depreciation (% Bad) 0
Functional Depreciation (% Bad) 0
Total Depreciated Value $493,327
Market Area Factor 1.00
Building Value $493,300
Misc Improvements Value $1,800
Total Improvement Value $495,100

Assessed Land Value $92,400
   
Assessed Total Value $587,500



Addition Summary 
StoryTypeCodeArea
1.00 ENCLOSED FRAME PORCH ENCL 160
1.00 OPEN FRAME PORCH OPEN 115
1.00 GAR/FRM/FLOOR/UNFIN GAR/ 800
1.00 BASEMENT-UNFIN-CF BASE 1083
1.00 BASEMENT-FIN-AVG-NR BASE 1150
 
Other Improvements 
UnitsDescriptionItemCodeYear% BadValue
36x18 DIMENSIONS PL-NON-DIVING-VINYL-R 2015 67 1400
700 SIZE POOL-DECK-CONCRETE-R 2013 80 300
1 SIZE SHED-R 2017 53 100
 


Building Sketch
Photograph
Building Sketch Building Photo
(Click sketch for bigger image)