Detailed Property Information

Building Summary

Data last updated on: 1/1/0001     Ownership current as of: 4/8/2026     Tax Year: 2026
REID 6876972828000

PIN # 6876-97-2828

Location Address Property Description
731 W Mountain ST LO:001 BL:5352T
   
Property Owner Owner's Mailing Address
AUSTIN, JEFFREY C
731 W Mountain St
Kernersville NC 27284
Parcel
Buildings
Misc Improvements
Land
Deeds
Notes
Sales
Photos
Tax Bill
Map
Building Location Address
731 W Mountain ST
Building Description
SINGLE-FAMILY
Card   of  1
Bldg Type RESIDENTIAL
Units 0
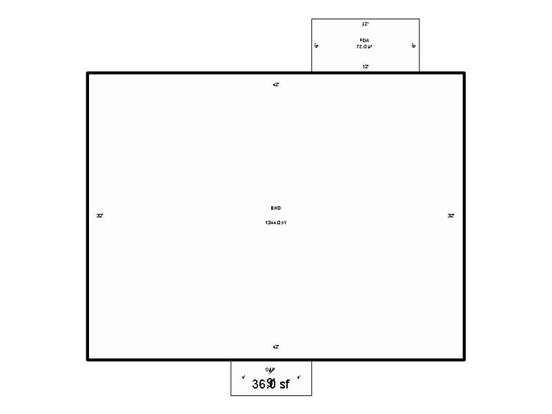
Living Area (SQFT) 1344
Number of Stories 1.00
Style CONVENTIONAL
Foundation MASONRY
Frame MASONRY
Exterior BRICK
Const Type
Heating Heat Pump
Air Cond HEAT PUMP
Plumbing Baths (Full):   2
Baths (Half):   0
Extra Fixtures:   0
Total Plumbing Fixtures:   6 
Bedrooms 2
Floor CARPET-HARDWOOD
Roof Cover Asphalt Shingle
Roof Type GABLE
Main Body (SQFT) 1344
Year Built 1972
Additions 4
Effective Year 1996
Remodeled 0
Interior Adj.
Other Features
Building Total & Improvement Details

Grade B-10 110%
Percentage Complete 100
Total Adjusted Replacement Cost New $298,824
Physical Depreciation (% Bad) AVER 29%
Depreciated Value $213,301
Economic Depreciation (% Bad) 0
Functional Depreciation (% Bad) 0
Total Depreciated Value $213,301
Market Area Factor 1.12
Building Value $238,900
Misc Improvements Value
Total Improvement Value $238,900

Assessed Land Value $29,800
   
Assessed Total Value $268,700



Addition Summary 
StoryTypeCodeArea
1.00 OPEN FRAME PORCH OPEN 36
1.00 FRAME DECK AVERAGE FRAM 72
1.00 BASEMENT-UNFIN-CF BASE 1344
1.00 FRAME DECK AVERAGE FRAM 290
 
Other Improvements 
 


Building Sketch
Photograph
Building Sketch Building Photo
(Click sketch for bigger image)